Продажа. Производственное помещение
Новокуйбышевск, Мичурина улица,10 - 280 000 000
Андрей
280 000 000
Продажа производственной базы. Расположение: Самарская область, г. Новокуйбышевск. Объект представляет собой комплекс строений различного назначения и участок 4,1 Га.
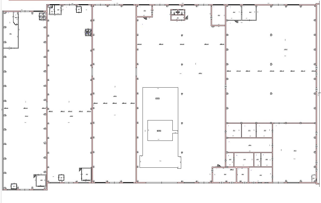
Производственные цеха от 1 296 до 2 592 кв.м. Каждый обеспечен кран-балками грузоподъёмностью от 5 до 10 т. Высота от пола до гака кран-балки минимум 6 м., что позволяет разгружать с борта транспорта. Так же, есть вспомогательные строения: ангары, склады хранения, КПП, офисные помещения. Ворота в каждое производственное помещение от 3,6 высотой 4 м., что обеспечивает свободный проезд длинномеров. Так же, многие цеха позволяют сквозной проезд техники. Коммуникации: электрическая мощность 1 Мвт (с возможностью увеличения), водоснабжение, водоотведение и отопление центральные. На территории базы есть открытые площадки для хранения товаров и материалов, а также стоянки транспортных средств. Размеры участка позволяют маневрировать длинномерным транспортным средствам.
Удобное географическое расположение и подъездные пути, а также наличие всех необходимых коммуникаций позволяет использовать данную базу практически под любые сферы деятельности.
| Адрес | Новокуйбышевск, Мичурина улица,10 |
| Тип | Производственное помещение |
| Использование | склад |
| Площадь, м2 | 12094 |
| Этаж | 1 из 1 |













