Продажа 2-ком. квартиры 76.4м²
Самара, Железнодорожный, Мечникова улица,5 - 8 500 000
Фомин Антон
"САМАРИТ" риэлторское агентство
8 500 000
111257 за м2
ЖК « На Мечникова»
Дом 2016 года постройки.
Квартира для тех, кто хочет жить обособленно, с отдельным входом, парковкой под окном, но с удобством проживания в многоквартирном доме.
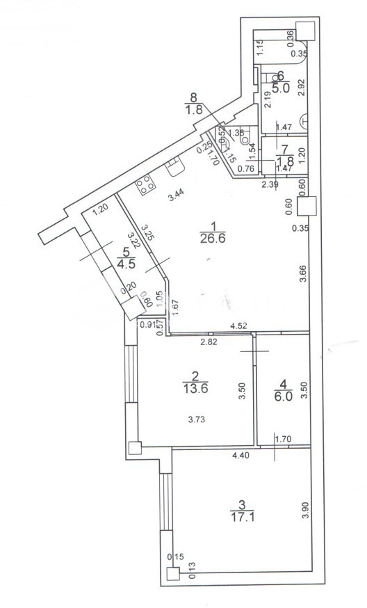
Высокие потолки 4 метра позволят вам дизайн, невозможный в обычных квартирах, например, двухъярусную детскую или спальню. Отличная планировка. Большая кухня-гостиная 27 метров. 2 изолированные комнаты 17 и 14 метров. 2 санузла. Есть дизайн-проект, предусмотрено много мест для хранения.
Под квартирой полноценный технический этаж высотой 4м.
Черновая отделка, выставлены перегородки.
Документы готовы, назначение жилое.
Один взрослый собственник. Ипотека подходит. Чистая продажа.
Хорошее местоположение: рядом ТРК Гудок, Крымская площадь, парк Щорса.
Звоните, мы покажем Вам квартиру в удобное время.
Общая площадь: 76,4 кв.м. Кухня-гостиная 26,6 кв.м. Комнаты: 17,1 + 13,6 кв.м. Два санузла 5,0 + 1,8 кв.м.
| Адрес | Самара, Железнодорожный, Мечникова улица,5 |
| Количество комнат | 2 |
| Площадь, м² | 76/30/26 |
| Этаж | 1/19 |
| Тип дома | Улучшенной пл. |
| Материал стен | Монолитно-кирпичный |
Фомин Антон, агент
"САМАРИТ" риэлторское агентство
443124, г. Самара, ул. Солнечная, д. 10
8 500 000
Размещён 11.02.2026, обновлён 11.02.2026


















