Продажа 2-ком. квартиры 57.6м²
Самара, Кировский, Московское шоссе 18-й километр,45 - 5 500 000
Копейкина Галина
5 500 000
95486 за м2
Двухкомнатная квартира в новом доме на Московском шоссе
? Адрес: Самарская область, г. Самара, Кировский район, Московское шоссе, 18-й километр, дом 45, этаж 7 из 26.
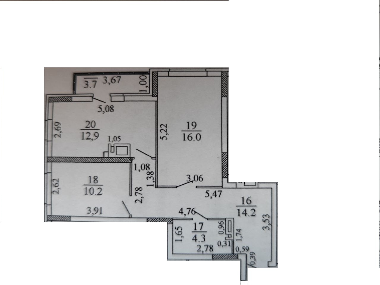
? Предлагается просторная двухкомнатная квартира общей площадью 57.6 м², с высокими потолками 2.5 метра, идеально подойдет для тех, кто ценит свободу пространства и комфорта.
? Общие характеристики:
- Площадь жилых комнат: 26.2 м²
- Кухня: 12.9 м²
- Планировка: изолированные комнаты
- Материал стен: керамзитобетон
- Отопление: централизованное
- Парковка: открытая во дворе
- Год постройки: 2022
- Окна: качественные стеклопакеты
? Инфраструктура дома предусматривает оба типа лифтов: пассажирский и грузовой, что существенно упрощает перемещение крупногабаритных предметов и повышает комфорт жильцов.
? Во дворе оборудованы детская и спортивная площадки, создающие отличные условия для активного образа жизни взрослых и малышей.
? Без дополнительной отделки квартира готова принять владельцев, готовых реализовать собственные дизайн-проекты и стиль интерьера, подходящий именно вашим предпочтениям.
? Оформить покупку можно с использованием ипотечных схем, в том числе возможен вариант с военной ипотекой, что делает приобретение особенно привлекательным вариантом для военнослужащих.
Откройте новую страницу вашей семейной истории вместе с квартирой, расположенной в одном из лучших районов Самары! Обращайтесь для подробной консультации и осмотра квартиры.
| Адрес | Самара, Кировский, Московское шоссе 18-й километр,45 |
| Количество комнат | 2 |
| Площадь, м² | 57/26/12 |
| Этаж | 7/25 |
| Тип дома | Улучшенной пл. |
| Материал стен | Керамзитобетон |








