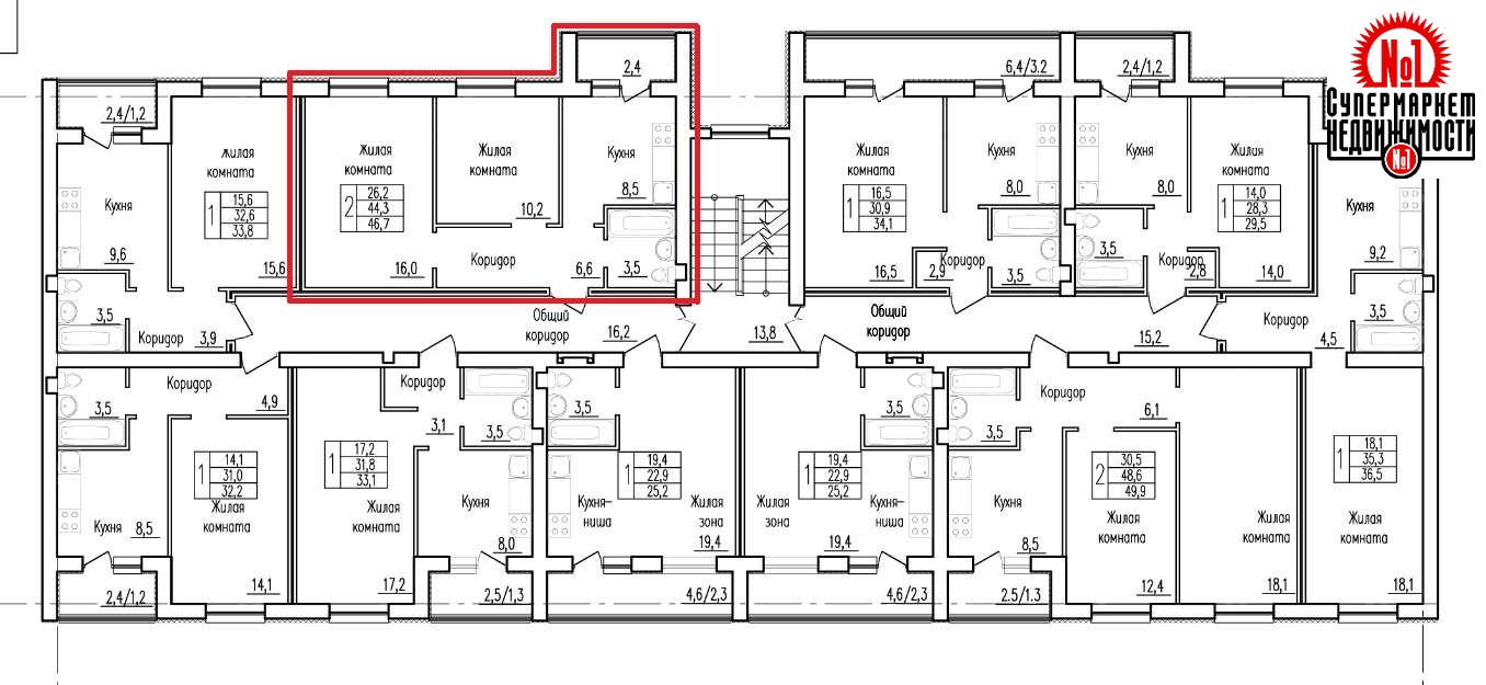
Продажа 2-ком. квартиры 44.3м²
Самарская область, Волжский р-н, Смышляевка посёлок городского типа ,12 - 5 200 000
Богуманов Марсель Ильясович
ООО "Супермаркет недвижимости №1"
5 200 000
117381 за м2
Продам квартиру в КОШЕЛЕВ ПАРКЕ (Н. Симонова, 12). Квартира с хорошим ремонтом от собственника, светлая и чистая. Натяжные потолки в ванной, прихожей и на кухне. В сан.узле кафель до потолка, остается мебель в ванной. Панорамное остекление лоджии (2,4 кв.м.) хорошая планировка , чистый подъезд, соседи дружные. Остается кухонный гарнитур, варочная поверхность, духовой шкаф. вытяжка, кондиционер, стиральная машина, мебель в детской, встроенные шкафы в комнате и прихожей, камин. Экологический район с развитой инфраструктурой, обустроенный двор, красивый вид из окна, всё в шаговой доступности: детские сады, школа, спортивные площадки, лесопарковая зона, любые магазины. Общая площадь с учетом лоджии - 46.7 кв.м.(см. планировку) Рассмотрю все формы расчетов. Звоните.
| Адрес | Самарская область, Волжский р-н, Смышляевка посёлок городского типа ,12 |
| Количество комнат | 2 |
| Площадь, м² | 44/26/8 |
| Этаж | 2/5 |
| Тип дома | Улучшенной пл. |
| Материал стен | Кирпичный |
Богуманов Марсель Ильясович, агент
5 200 000
Размещён 30.04.2026, обновлён 30.04.2026





















