Продажа 3-ком. квартиры 73.5м²
Самара, Промышленный, Московское шоссе,306 - 9 485 000
Вадим
АН Бригантина
9 485 000
129048 за м2
Продается уютная 3х комнатная квартира в 2х шагах от школы. Удобная планировка - на две стороны.
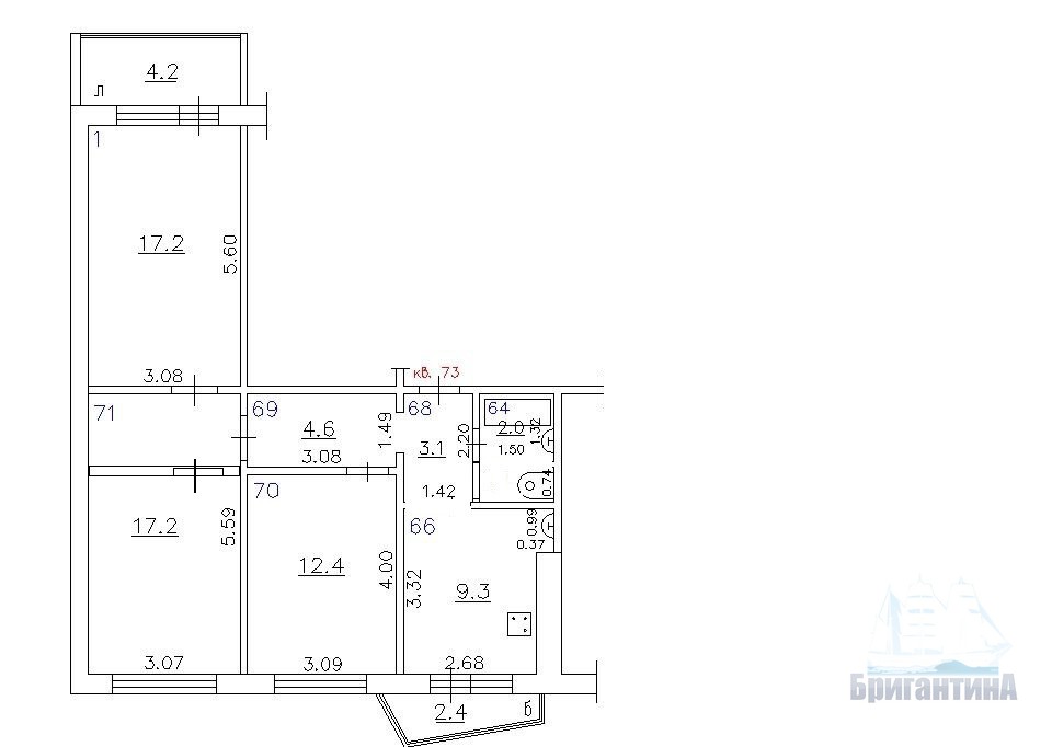
Квартира расположена на 9 этаже 12 этажного панельного дома, в доме два лифта. Квартира очень теплая. Площадь квартиры 66,9 кв.м./комнаты 17,2+13+12,4 кВ.м/кухня 10 кв.м. + лоджия 4,2+ балкон 2,4 кв.м. Все комнаты раздельные. Удобная гардеробная 2,5 кв.м.
В квартире сделан капитальный ремонт , полная замена коммуникаций (стояки+радиаторы отопления), бетонная стяжка пола, штукатурка стен, полная замена электрики, установлены счетчики на воду. Лоджии застеклены(утеплены) + теплый пол. Пластиковые окна. Квартира продается с мебелью и техникой. Хорошие соседи, 4 квартиры на этаже.
Благоустроенный двор детские площадки, футбольное поле , удобная парковка во дворе, а так же в пешей доступности 2 ГСК и 2 стоянки. Рядом рынок Шапито, Пятерочка, Магнит. Во дворе расположена школа №10 и детский сад №374, в пешей доступности школы 100, 85 и 108, в пяти минутах ходьбы 4 детских сада 402, 138, 385. В непосредственной близости стадион Самара-Арена.
Ипотека подходит. Звоните, покажем в удобное для вас время.
| Адрес | Самара, Промышленный, Московское шоссе,306 |
| Количество комнат | 3 |
| Площадь, м² | 73/42/10 |
| Этаж | 9/12 |
| Тип дома | Улучшенной пл. |
| Материал стен | Панельный |
Вадим, агент
АН Бригантина
г. Самара Московское шоссе,литера Д, ТОЦ "БИГ- БЕН" офис № 212. (2-й этаж)
9 485 000
Размещён 19.03.2026, обновлён 19.03.2026































