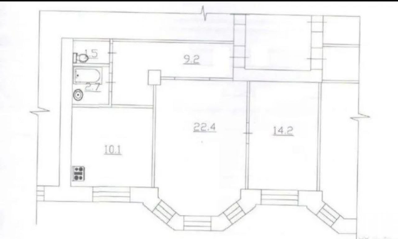
Аренда 2-ком. квартиры 60м²
Самара, Ленинский, Волжский проспект,37 - 49 900
Андрей Валерьевич
49 900
49900 за м2
Сдается квартира на длительный срок (от 6 месяцев и дольше). Высокие потолки (3 метра). Просторные светлые комнаты. Свежий ремонт. В спальне находится двуспальная кровать с новым ортопедическим матрасом, шкаф и комод. В гостиной находятся шкафы для хранения вещей, а также обустроено место для отдыха, установлен новый кондиционер. Кухня и ванная оборудована всей необходимой техникой. В туалете установлен гигиенический душ. Все окна выходят на набережную.
| Адрес | Самара, Ленинский, Волжский проспект,37 |
| Количество комнат | 2 |
| Площадь, м² | 60/40/10 |
| Этаж | 2/5 |
| Тип дома | Сталинка |
| Материал стен | Кирпичный |
Андрей Валерьевич, агент
49 900
Размещён 31.08.2022, обновлён 13.09.2025
ID: 1-115-3581









