Продажа. Таунхаус 345 м²
Самара, Октябрьский, 1-я просека - 45 000 000
Сергей
ООО Формула недвижимости
45 000 000
Продаем таунхаус по цене черновых, вновь построенных небольших коттеджей рядом, в нашем таунхаусе сразу можно жить и не тратить годы и десятки миллионов рублей на ремонт.
Внимание! Реальное предложение/не фейк по продаже таунхауса на 1ой просеке с ремонтом с самым большим участком в поселке "Европейский двор" 4,5 сотки с возможностью установки уличного бассейна с чашей 10 метров. Все коммуникации центральные, хорошая охрана, ТСЖ, закрытая территория, спокойные и респектабельные соседи, паркинг на несколько авто.
Продаю современный таунхаус на 1-ой просеке в закрытом коттеджном поселке,в доме сделан свежий современный дизайнерский ремонт. Центральные коммуникации и охрана поселка. На участке возможно размещение открытого бассейна 10 метров в длину. Рядом Загородный парк и частный детский сад,резиденция губернатора.
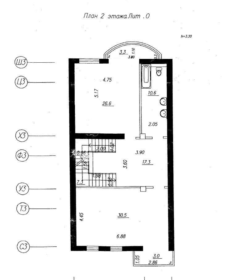
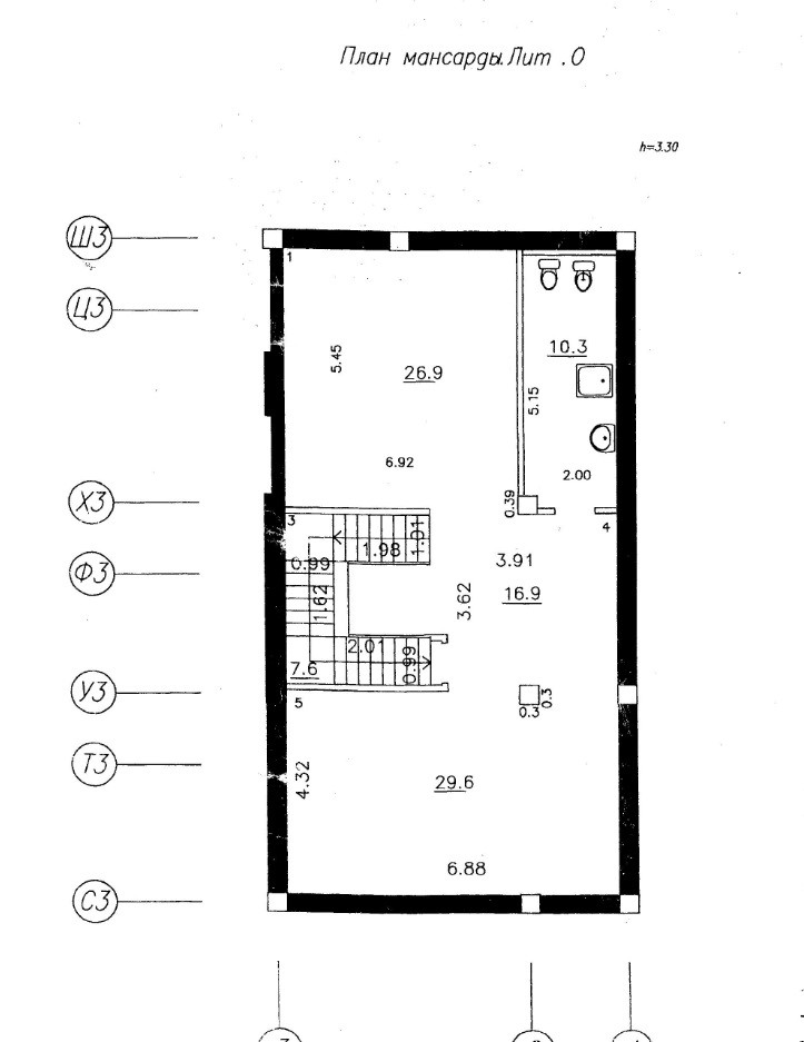
Планировка дома включает в себя:
Цокольный этаж: вход из паркинга в дом, гостиная-гардеробная 47,9м2,ванная комната с джакузи и душевой 25,2м2, котельная-прачечная с выходом на участок.
1ый этаж: кухня-столовая с островом 36,6м2, гостиная с витражными окнами 30,6м2,
2ой этаж: детская комната 26,6м2 ванная комната 10,6м2, жилая комната 30,5м2.
мансардный этаж: основная спальная комната 26,9м2, ванная комната 10,3м2, гардеробная комната 29,6м2.
Планировки дома также прилагаю в фото.
Первая просека/ Вторая просека/ Ренесанс/ КП Озерки / КП Горелый хутор/ Жигулевские ворота/ Барбошина поляна /9 просека /Монако/ Шале/ Волжские зори /Студеный овраг /Дом с бассейном Мастрюки/ ЖГИС /Первая просека /Загородный парк
По всем вопросам звоните или пишите.
Просьба прочитать внимательно объявление перед звонком и просмотром, так как в нем содержится практически исчерпывающая информацию о характеристиках таунхауса, финансово неподготовленных просьба не звонить!!!
Показ по предварительной договоренности.
С уважением, Сергей
| Адрес | Самара, Октябрьский, 1-я просека |
| Площадь дома, м2 | 345.00 |
| Этажность | 4 |
| Тип дома | Таунхаус |
| Материал стен | Кирпичный |
| Площадь участка, сот | 4.50 |
Сергей, агент
ООО Формула недвижимости
г.Самара, ул.Осипенко 3, строение 3, офис 204
45 000 000
Размещён 20.11.2025, обновлён 20.11.2025


























