Продажа. Дом 70 м²
Самара, Красноглинский, 11-я линия - 5 999 000
Шабалкин Кирилл
"САМАРИТ" риэлторское агентство
5 999 000
СТ БОЛЬШИЕ СОРОКИНЫ ХУТОРА, 11-я линия/5-я линия, СНТ Салют-2, территория Малые Дойки
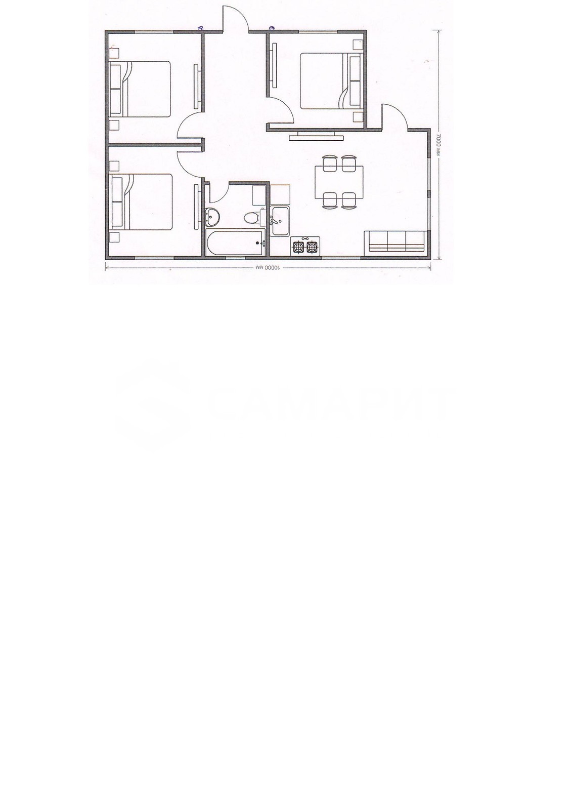
Новый каркасный дом в городе Самара площадью 70м2 ( 65,4 м2 по документам):
три комнаты,
кухня-гостиная,
санузел,
веранда.
Дом теплый- готов к круглогодичному проживанию. Высокие потолки, современный ремонт, ламинат, сантехника, окна с ламинацией, в доме электричество, вода, есть септик, состояние: ставьте мебель и живи.
На участке: новая баня, яблони, парковка, забор. Соседи живут постоянно.
До Мехзавода 5 минут. Садики, школы, клиника ИДК, город Самара.
Показы по договоренности, звоните, покажу.
Обмен на недвижимость, авто, с вашей доплатой.
1 взрослый собственник, документы полностью готовы, долгов и обременений нет, быстрый выход на сделку, ипотеку рассмотрим ( ПОД СЕМЕЙНУЮ НЕ ПОДХОДИТ).
Кадастровый номер земли 63:01:0324003:4020
Общая площадь 70м2, жилая 27,4 м2, кухня 18,8 м2.
Рассмотрим ВЫКУП Вашей квартиры под ремонт. Присылайте ссылки на Ваши объявления или фотографии
| Адрес | Самара, Красноглинский, 11-я линия |
| Площадь дома, м2 | 70.00 |
| Этажность | 1 |
| Тип дома | Дом |
| Материал стен | Деревянный |
| Площадь участка, сот | 4.00 |
Шабалкин Кирилл, агент
"САМАРИТ" риэлторское агентство
443124, г. Самара, ул. Солнечная, д. 10
5 999 000
Размещён 18.07.2025, обновлён 19.01.2026



































