Продажа. Дом 122.7 м²
Самарская область, Красноярский р-н, Новосемейкино посёлок городского типа - 5 600 000
Андреева Гузель Асхатовна
АН ВАШ РИЭЛТОР
5 600 000
Предлагается к продаже недостроенный дом в КП Звездный Красноярского района.
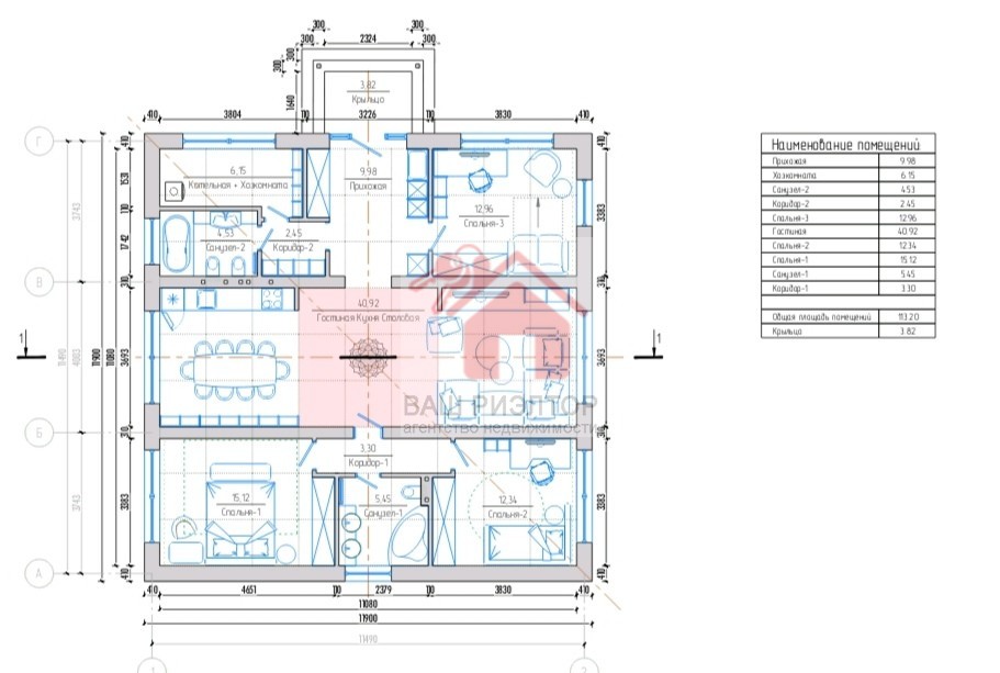
Площадь дома 122,7м2, 3 комнаты, кухня -гостиная, 2 санузла, котельная, участок 6 соток.
Небольшой торг уместен.
Приглашаем к просмотру.
| Адрес | Самарская область, Красноярский р-н, Новосемейкино посёлок городского типа |
| Площадь дома, м2 | 122.70 |
| Этажность | 1 |
| Тип дома | Дом |
| Материал стен | Газобетонный блок |
| Площадь участка, сот | 6.00 |
Андреева Гузель Асхатовна, агент
5 600 000
Размещён 28.01.2026, обновлён 24.04.2026
ID: 2-622-629












