Продажа. Дом 112 м²
Самара, Кировский, Обсерваторная улица,12 - 14 400 000
Ковалева Ирина Раисовна
Агентство недвижимости Византия
14 400 000
Продается новый дом (2022 года постройки) с хорошим ремонтом и техникой.
Строился для себя из дорогих и качественных строительных материалов.
Керамзитный блок, облицовка из красного кирпича.
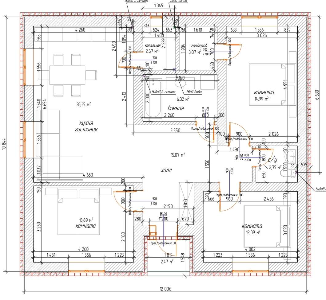
В доме 3 спальных , гардероб, большая кухня-гостинная, котельная. По всему дому теплые полы.
Вокруг дома выложена брусчатка. Собственная скважина и двухкамерный септик. Откатные ворота.
Земельный участок площадью 7 соток. Кадастровый номер 63:02:0248039:629
Более подробная информация при посмотре.
Помощь в одобрении ипотеки любой сложности. Сопровождение сделки.
| Адрес | Самара, Кировский, Обсерваторная улица,12 |
| Площадь дома, м2 | 112.00 |
| Этажность | 1 |
| Тип дома | Дом |
| Материал стен | Блочный |
| Площадь участка, сот | 7.00 |
Ковалева Ирина Раисовна, агент
14 400 000
Размещён 12.12.2025, обновлён 15.12.2025
ID: 2-349-1694


















