Продажа. Дом 142.7 м²
Самарская область, Волжский р-н, Власть Труда посёлок,26 - 9 800 000
Арсентьев Александр Владимирович
Агентство недвижимости Византия
9 800 000
Продается дом 140 квадратных метров на участке 13 соток в пос. Власть Труда.
Участок расположен в живописном и экологически чистом районе в окружении леса, множества озер и проток.
В 200 метрах находится песчаный пляж, лодочная станция с выходом на реку Волга ( есть возможность установить понтон под лодку, водную технику).
Участок ровный прямоугольный в свободной планировке с возможностью сделать парковочные места, гараж, банный комплекс, гостевые дома, бассейн, оформить красивый ландшафтный дизайн.
Установлен новый забор по периметру с откатными электрическими воротами.
Дом строили из хороших материалов: газоблок 400 мм., утеплен по кругу, фасад Ceresit, фасадная доска из лиственницы.
Предчистовая отделка: выполнена разводка электрики, монтаж внутридомовой канализации, монтаж холодного/горячего водоснабжения, теплые полы, установлен электрический котел.
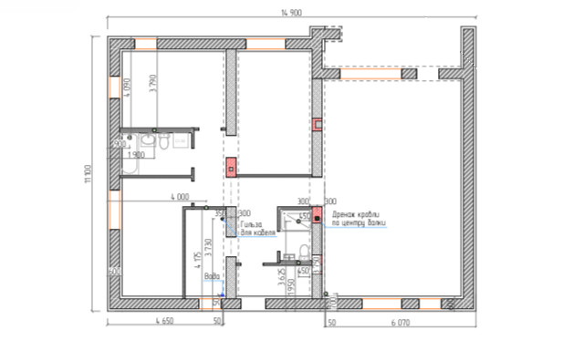
Планировка: просторная кухня-гостиная с выходом на террасу, две комнаты, душевая, ванна, тех.помещение, холл, тамбур, входная зона.
Коммуникации: электричество 15 кВт 2200/380 В, индивидуальная скважина, септик.
Отлично подойдет для отдыха и проживания, как коммерческая недвижимость, аренда недвижимости, готовый бизнес.
Поможем с оформлением ипотеки.
| Адрес | Самарская область, Волжский р-н, Власть Труда посёлок,26 |
| Площадь дома, м2 | 142.70 |
| Этажность | 1 |
| Тип дома | Дом |
| Материал стен | Газобетонный блок |
| Площадь участка, сот | 13.00 |
Арсентьев Александр Владимирович, агент
9 800 000
Размещён 19.09.2025, обновлён 22.09.2025




















