Продажа. Коттедж 150 м²
Самара, Промышленный, 7-я просека 6-й проезд - 18 000 000
Ефремов Владислав
18 000 000
Свой дом по цене квартиры! Если вы хотите жить в своем доме, но в тоже время не выезжать за пределы города, то этот коттедж отличный вариант!
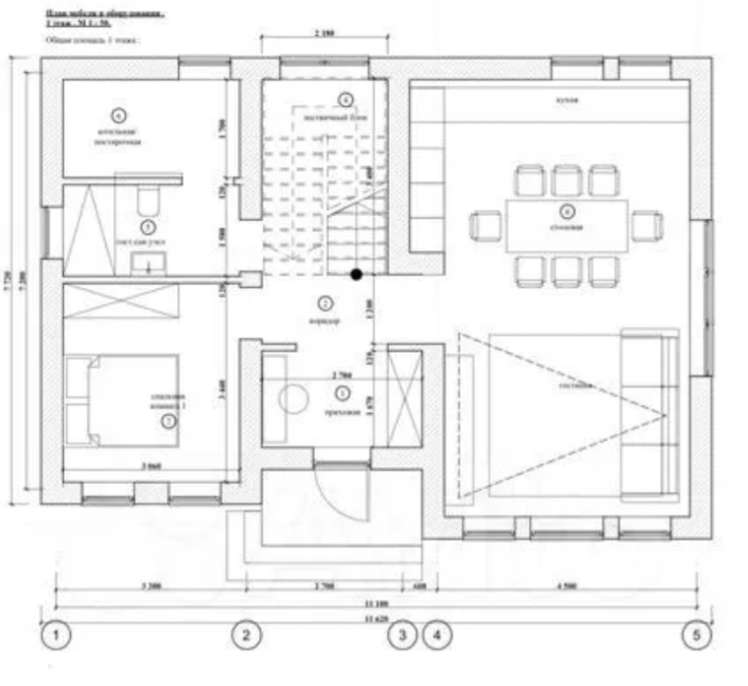
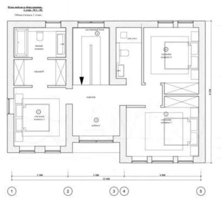
Планировка может быть изменена по вашему желанию.
Возможно заключение договора подряда с поэтапной оплатой. Возможна продажа в семейную ипотеку.
Также можем предложить выполнение предчистовой или полностью чистовой отделки в соответствии с дизайн проектом с полной комплектацией мебелью, техникой, ландшафтным дизайном под ключ.
Хорошая локация. Экологически чистый район города. Тишина. Рядом Волга.
Вблизи есть вся необходимая инфраструктура: школа, детский сад, магазины, аптека, также ходит общественный транспорт..
Если Вам нужен райский уголок для души и отдыха возле Волги, тогда это Ваш вариант.
Все подключенные коммуникации. Функциональная планировка, выход на задний двор через панорамное остекление в кухне-гостиной. Удобные подъездные пути, широкие дороги.
Коттедж построен из Керакама, снаружи утеплитель фасада Технониколь. Крыша: мягкая кровля, всегда защитит дом от всевозможных погодных явлений в виде снега и проливного дождя. Благодаря комфортному остеклению в доме всегда играют теплые лучи солнца . По периметру установлен забор, на участке парковка на 2 автомобиля. Удобный подъезд к дому. Дорога хорошая, зимой чистят.
| Адрес | Самара, Промышленный, 7-я просека 6-й проезд |
| Площадь дома, м2 | 150.00 |
| Этажность | 2 |
| Тип дома | Коттедж |
| Материал стен | Кирпичный |
| Площадь участка, сот | 4.00 |
Ефремов Владислав, агент
18 000 000
Размещён 07.04.2026, обновлён 26.05.2026







