Аренда. Здание
Тольятти, Автозаводский, Автостроителей улица,1а - 973 120
Солидарность-риелт
Солидарность-риелт
973 120
800 за м2
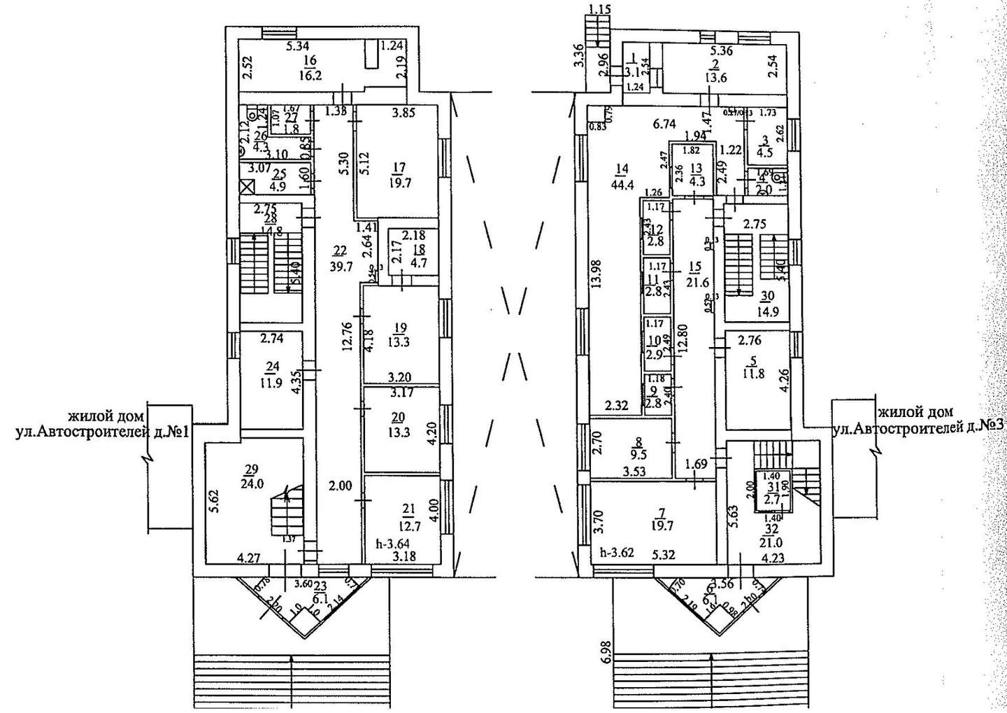
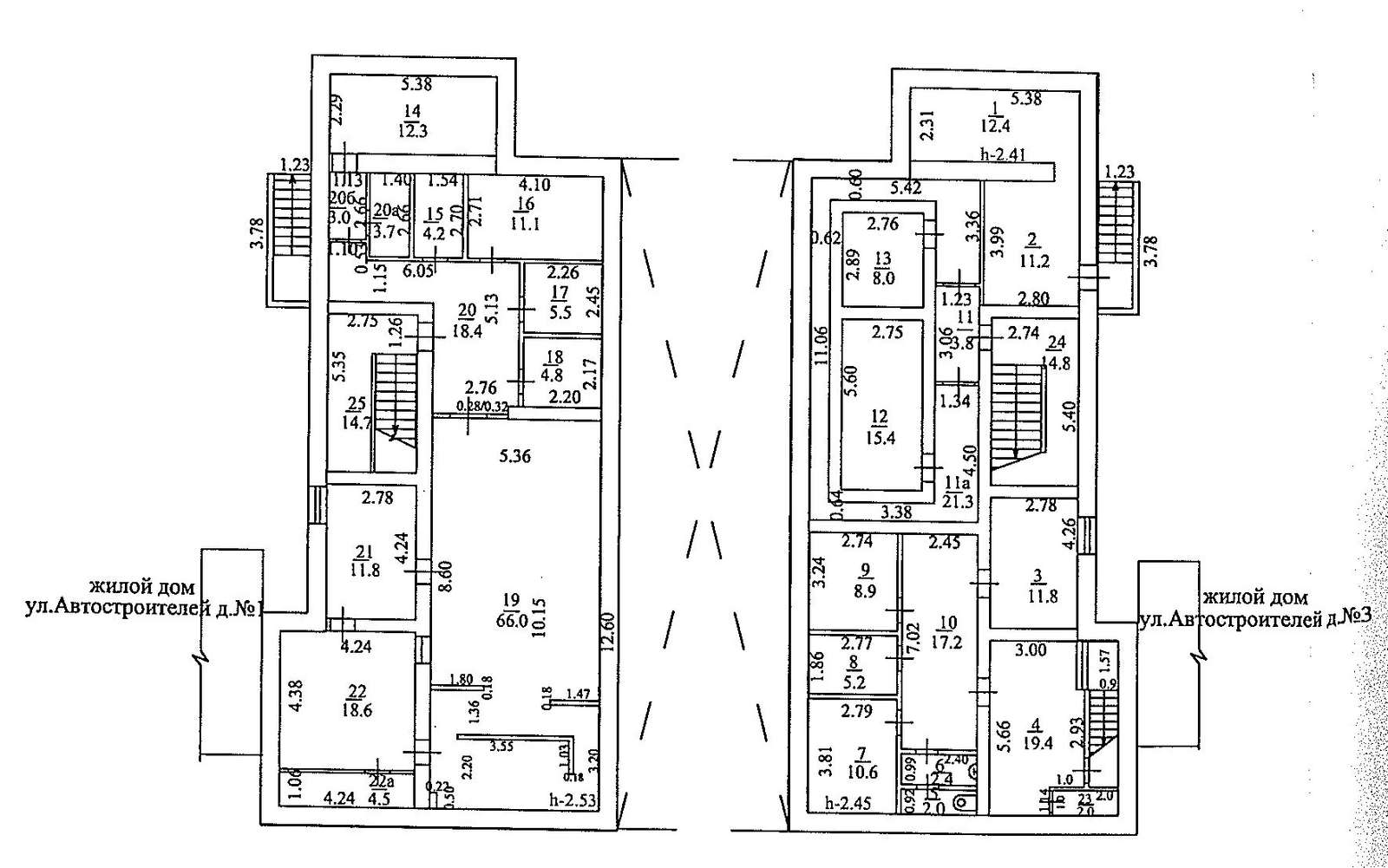
О здании (кадастровый номер 63:09:0101156:10042):
- общая площадь – 1 216,4 м²;
- этажность – 2 надземных этажа + цокольный (подземный);
- надежная конструкция – кирпичные стены, ж/б перекрытия;
- год постройки – 1999.
Планировка и функциональность:
- удобная кабинетная планировка;
- просторный операционный зал;
- кабинет руководителя с совещательной комнатой;
- комната для приёма пищи;
- 5 санузлов – по 2 на этажах и 1 в цоколе;
- три входа: два – с улицы Автостроителей, один – с внутреннего двора.
Техническое оснащение:
- электрическая мощность – 200 кВт;
- центральные коммуникации: водоснабжение, канализация, отопление;
- приточно-вытяжная вентиляция;
- система кондиционирования;
- пожарная сигнализация и система видеонаблюдения.
Инфраструктура и локация:
- первая линия улицы Автостроителей;
- большая парковка для клиентов и сотрудников;
- 1 минута до остановок общественного транспорта;
- удобный подъезд с Обводного и Южного шоссе;
- развитая инфраструктура поблизости: магазины, ТЦ, школы, детсады, скверы и медцентры;
- интенсивный пешеходный и автомобильный трафик – отличное место для бизнеса.
Земельный участок – в аренде.
Отличное предложение для инвесторов и компаний, ищущих представительный офис в активной деловой зоне. Идеально для офиса, банка, учебного центра, клиники, коворкинга.
Аренда от собственника.
Звоните, пожалуйста, в будние дни с 9:00 до 18:00 часов, в пятницу - до 17:00 часов.
| Адрес | Тольятти, Автозаводский, Автостроителей улица,1а |
| Тип | Здание |
| Использование | |
| Площадь, м2 | 1216 |
| Этаж | 1 из 2 |
Солидарность-риелт, агент
Солидарность-риелт
443079, Самарская обл., г. Самара, проезд Георгия Митирёва, д. 11, оф. 136
973 120
Размещён 09.04.2026, обновлён 09.04.2026
ID: 4-910-64















