Аренда. Офис
Самара, Советский, Гастелло улица,44 - 120 000
Людмила Васильевна
АН Крепость
120 000
1000 за м2
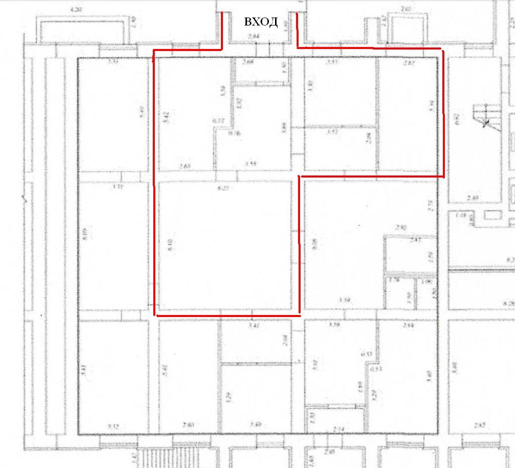
Сдам в аренду на длительный срок офисное помещение площадью 120 кв.м. (можно больше) по улице Гастелло, д.44 на пересечении с улицей Дыбенко, на первом этаже 17-ти этажного кирпичного жилого дома 2013 года постройки, со своим отдельным входом со двора. Парковка свободная вокруг дома. В помещении выполнен качественный евроремонт, в соответствии с требованиями пожарной безопасности, имеется пожарная и охранная сигнализации, высокоскоростной интернет по выделенному оптоволокну, холодная и горячая вода, центральное отопление. Помещение состоит из: 6 кабинетов + два холла + туалет + комната отдыха и приема пищи, высота потолков 3,2 метра. Хорошее местоположение, развитая инфраструктура, подходит под размещение: IT-компании, организации финансовой и банковской сферы, строительной организации, ТСЖ, управляющей компании, массажного или спа салона или красоты, различных студий, пунктов выдачи заказов и т.п. Один взрослый собственник (физлицо). Стоимость аренды 1000 рублей/кв.м. в месяц+к.у. (условия оговариваются). Возможно предоставление юридического адреса.
| Адрес | Самара, Советский, Гастелло улица,44 |
| Тип | Офис |
| Использование | |
| Площадь, м2 | 120 |
| Этаж | 1 из 17 |
Людмила Васильевна, агент
120 000
Размещён 29.10.2025, обновлён 29.10.2025












