Аренда. Универсальное
Самара, Ленинский, Самарская улица,207 - 300 000
Хамидуллов Дамир
ТРИО
300 000
600 за м2
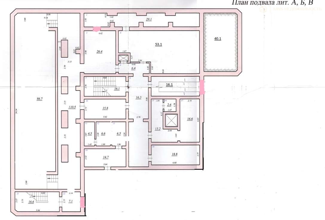
Сдаю коммерческое помещение свободного назначения расположенное на цокольном этаже, которое можно использовать под склад, архив, мастерские или дополнительные рабочие зоны. Коммерческая недвижимость готова к оперативному использованию и адаптации под любые бизнес‑задачи.
В помещении — крытый гараж, обеспечивающий удобную парковку и возможность загрузочно-разгрузочных работ. Инженерные коммуникации исправны, при необходимости можно оборудовать дополнительные мокрые точки.
В помещении заканчивается ремонт, ранее использовался как депозитарий ПАО Сбербанк.
Помещение имеет 2 входа - вход с улицы Самарской и со двора улицы Садовой (через гараж)
Возможна сдача части помещения рассмотрим Ваши предложения.
Показы в заранее согласованное время.
Услуги для арендатора бесплатные.
| Адрес | Самара, Ленинский, Самарская улица,207 |
| Тип | Универсальное |
| Использование | свободного назначения |
| Площадь, м2 | 500 |
Хамидуллов Дамир, агент
300 000
Размещён 19.11.2025, обновлён 19.11.2025





































