Продажа. Торговая площадь
Самарская область, Кошкинский р-н, Кошки село,6 - 35 000 000
Носов Максим
35 000 000
Предлагаем для приобретения отдельно стоящее нежилое здание с арендатором – федеральной сетью продуктовых магазинов «Находка». Здание расположено на собственном земельном участке в центре села Кошки в районе Парка 20–летия Победы. В соседних зданиях находятся: «Семь+Я», «Чижик», «Россельхозбанк», Дом быта.
Здание кирпичное, в 2025 году был проведен капитальный ремонт. Все коммуникации центральные, выделенная электрическая мощность – 75 кВт. Перед магазином имеется просторная парковка для посетителей.
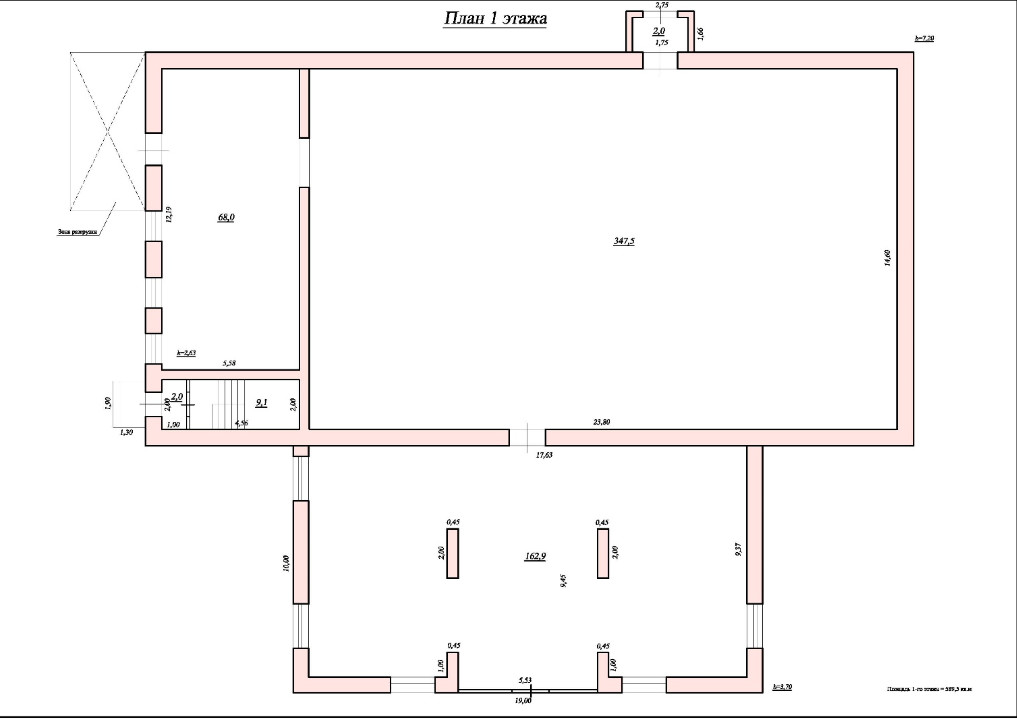
С арендатором заключен договор аренды на 10 лет на площадь 580,4 кв. м на 1-ом этаже, есть свободная площадь для увеличения арендного потока в цоколе – 133,1 кв. м и на втором этаже – 68 кв. м. Также сдается часть земельного участка под установку базовой станции оператора мобильной связи «МТС».
Здание продается как готовый арендный бизнес с надежным федеральным арендатором.
| Адрес | Самарская область, Кошкинский р-н, Кошки село,6 |
| Тип | Торговая площадь |
| Использование | торговая площадь |
| Площадь, м2 | 782 |
| Этаж | 1 из 1 |




