Аренда. Торговая площадь
Самара, Кировский, Ташкентская улица,121 - 271 440
Носов Максим
271 440
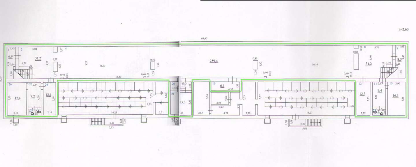
Нежилое помещение, занимающее весь этаж дома на первой линии ул. Победы. Высокий транспортный и пешеходный трафик. В ближайшем окружении находятся ТРК «Вива Лэнд», площадь Кирова, ДК им. Литвинова, остановки общественного транспорта городских и пригородных маршрутов. Первый этаж дома занимают коммерческие помещения, арендованные стабильными долгосрочными организациями, привлекающими большое число потенциальных покупателей.
Помещение имеет два отдельных входа, один из которых используется как центральный, а второй служит для погрузки/разгрузки товара. Свободная торговая планировка, качественный ремонт, городские коммуникации, высота потолка – 2,6 кв. м. В помещении смонтирована система кондиционирования, имеются выделенные поверхности для вывесок на фасаде.
Помещение универсальное, подойдет под любой вид коммерческой деятельности.
| Адрес | Самара, Кировский, Ташкентская улица,121 |
| Тип | Торговая площадь |
| Использование | торговая площадь |
| Площадь, м2 | 452 |
| Этаж | -1 из 5 |






