Аренда. Торговая площадь
Самара, Октябрьский, Ново-Садовая улица,155 - 55 000
Алексей
55 000
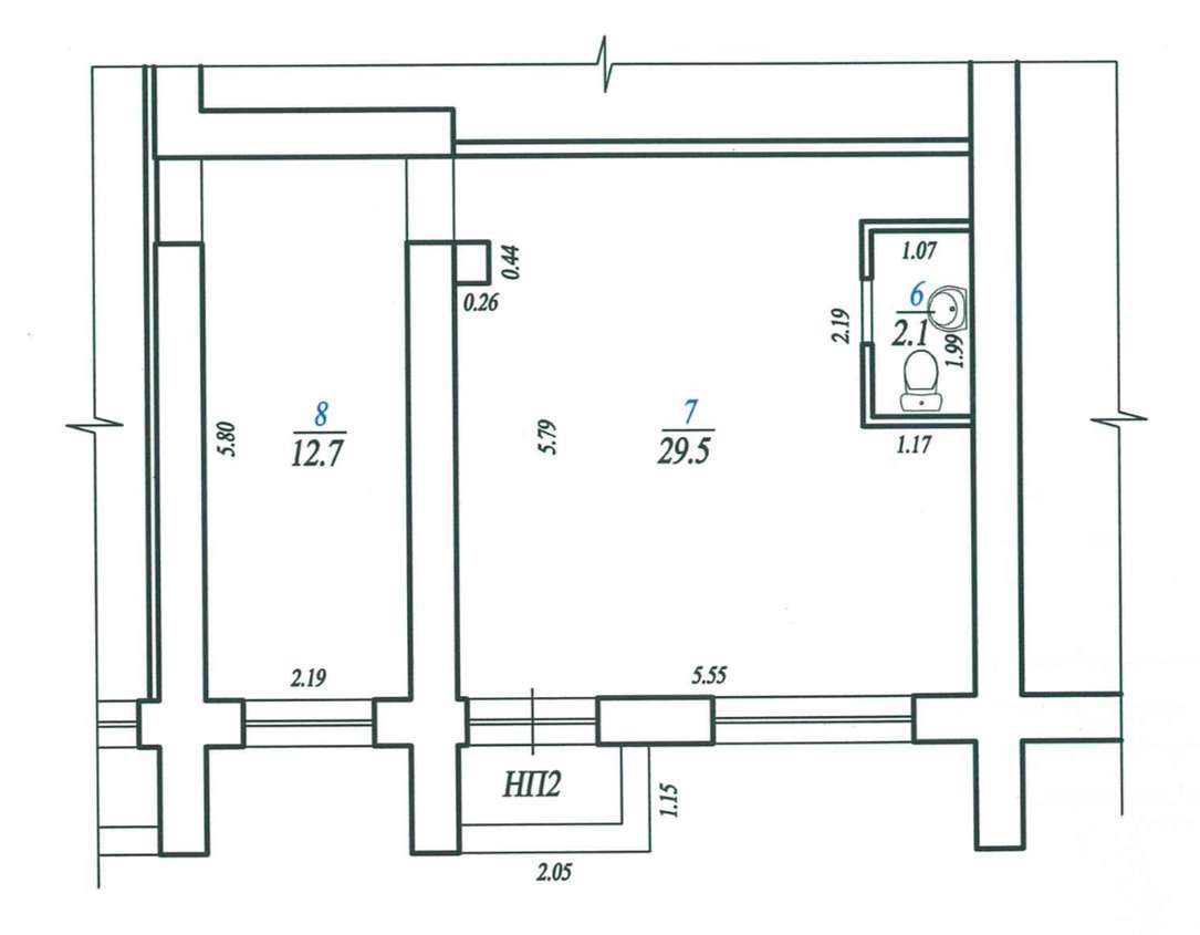
Сдам в аренду нежилое помещение в жилом доме.
Первый этаж, отдельный вход, свободная планировка. В помещении выполнен ремонт: пол плитка, стены и потолок окрашены, установлены светодиодные светильники, высота потолков – 2.5 м, городские коммуникации, место для рекламы на фасаде.
Рядом расположены Бизнес Центр «ЗИМ», ТРК «Звезда», Государственная Третьяковская галерея «Третьяковка в Самаре», музейно-выставочный центр «Самара Космическая» и т.д.
Интенсивный пешеходный и автомобильный трафик.
Удачный вариант для размещения кофейни, кондитерской, пункта выдачи заказов и т.д.
| Адрес | Самара, Октябрьский, Ново-Садовая улица,155 |
| Тип | Торговая площадь |
| Использование | торговая площадь |
| Площадь, м2 | 44 |
| Этаж | 1 из 9 |














