Аренда. Офис
Самара, Октябрьский, Мичурина улица,21 - 680 000
Светлана
Инвестиционная компания Бизнес Гарант
680 000
800 за м2
Аренда офисов в бизнес-центре в Самаре
Предлагаем в аренду просторные и современные офисы в Октябрьском районе Самары, на улице Мичурина, дом 21.
Это бизнес-центр класса B+, который отличается высоким качеством строительства и хорошими условиями для работы.
Основные характеристики:
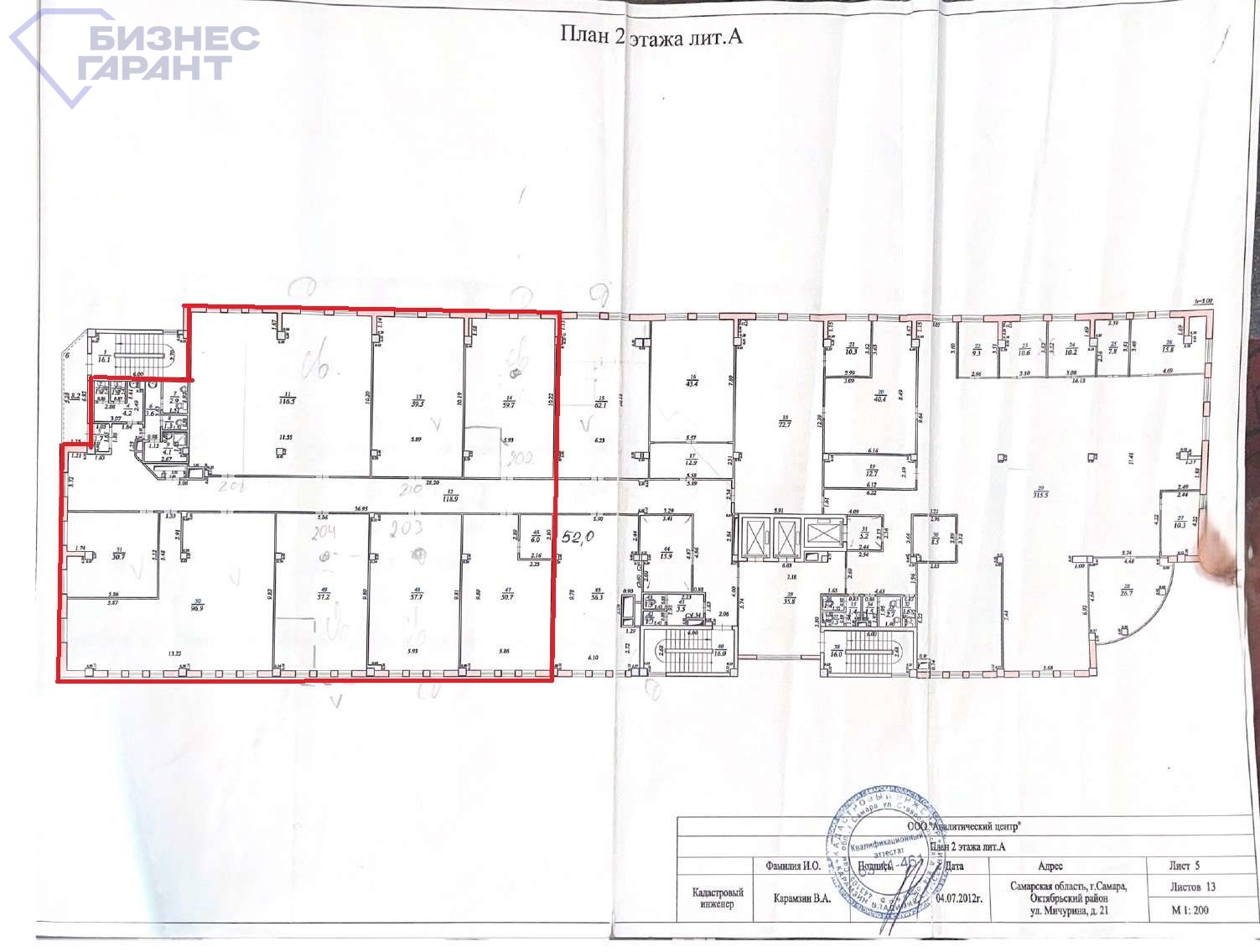
* Этаж: аренда 2 эт. (650 кв.м), 4эт. (850 кв.м) из 10.
* Площадь: 850 кв. м и 650 кв.м
* Высота потолков: 3 метра, что создаёт ощущение простора и свободы.
* Выделенная мощность: 450 кВт, что позволяет комфортно разместить все необходимые технические устройства и системы.
* Состояние: отличное, что свидетельствует о качественном ремонте и обслуживании здания.
* 3 пассaжирских лифта.
Коммуникации и удобства:
* В бизнес-центре есть выделенная интернет-линия, которая обеспечит стабильную и быструю работу вашей компании (6 провайдеров интернета)
* 1 кaтeгория подключeния электpoэнeргии (2 кaбеля зaведены c paзныx пoдcтaнций). Общая мощность на все здание -450 Квт
* Пожарная и охранная сигнализации.
* Возможен доступ 24/7.
* Система кондиционирования.
* Оборудованная серверная.
* В здании предусмотрена парковка, что особенно удобно для сотрудников и клиентов.
* Вход в бизнес-центр осуществляется с улицы, что обеспечивает лёгкий доступ и удобство для посетителей.
*На 1 этаже находится ресторан, на 10 этаже гостиница и конференс зал.
Бизнес-центр на улице Мичурина, дом 21 это идеальное место для размещения вашей компании.
Здесь вы найдёте всё необходимое для комфортной работы и развития вашего бизнеса.
Стоимость аренды: 800р/кв.м + электричество по счетчику+вывоз мусора 3,5 р/кв.м+ 5%НДС
Услуги для арендатора бесплатны.
| Адрес | Самара, Октябрьский, Мичурина улица,21 |
| Тип | Офис |
| Использование | |
| Площадь, м2 | 850 |
| Этаж | 4 из 10 |
Светлана, специалист по продаже и аренде коммерческой и жилой недвижимости
Инвестиционная компания Бизнес Гарант
Самара, ул.Мичурина, 21А
680 000
Размещён 29.11.2025, обновлён 16.04.2026



























