Аренда. Торговая площадь
Новокуйбышевск, Победы проспект,7 - 295 800
Семенова Ольга Владимировна
Самара-Альфа
295 800
850 за м2
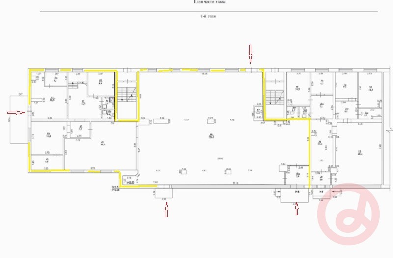
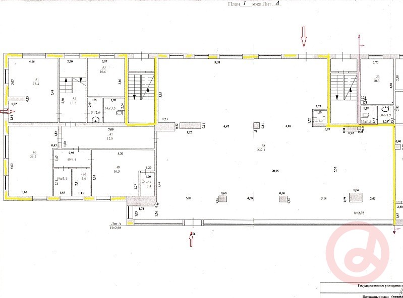
Аренда магазина 348 кв.м. 1 этаж. Четыре входа: два фасадных, с торца и со двора. Витрина на проспект Победы. Есть окна во двор и на торец дома. Имеются 7 окон во двор, из них 5 окон зашиты.
Планировка свободная. Потолки 3,5 метра. Электрическая мощность 60 кВт. Состояние хорошее. Возможно разделение на 2 помещения, каждое со своим фасадным входом.
| Адрес | Новокуйбышевск, Победы проспект,7 |
| Тип | Торговая площадь |
| Использование | магазин |
| Площадь, м2 | 348 |
| Этаж | 1 из 5 |
Семенова Ольга Владимировна, агент
295 800
Размещён 24.09.2025, обновлён 11.02.2026
ID: 4-248-3030






















