Универсальное: Тольятти, Мира улица,93 - 5 799 000
Кирюшин Алексей Иванович
Русская жемчужина
5 799 000
Продается помещение 111м2
Удобное расположение на второй линии, отдельный вход и круглосуточный доступ делают этот объект отличным вариантом для вашего бизнеса. Обеспеченная парковка добавляет комфорт для клиентов.
В окружении многоэтажные дома, супер-маркет "Миндаль", что способствует постоянному потоку посетителей.
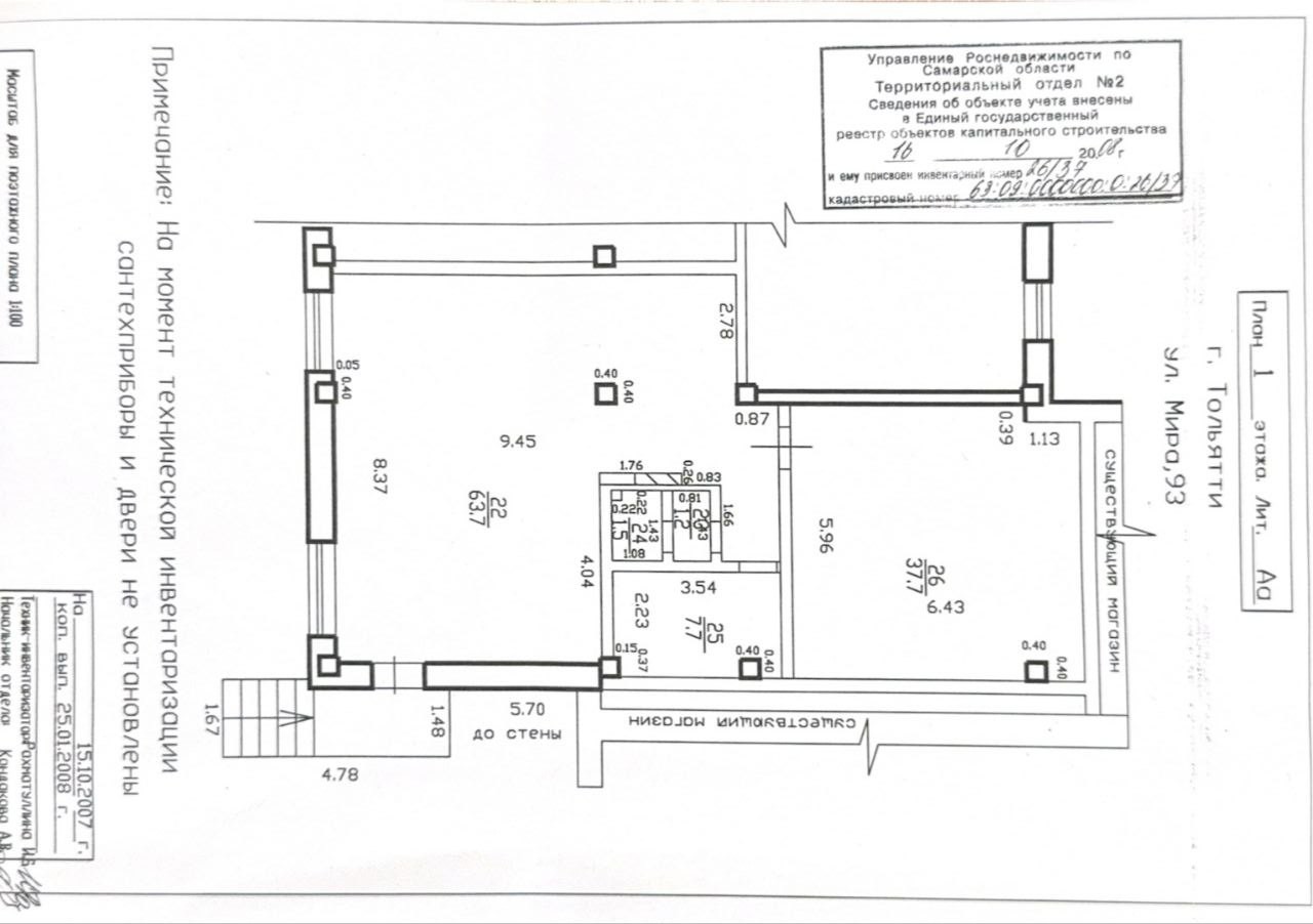
Адрес | Тольятти, Центральный, Мира улица,93 |
Тип | Универсальное |
Использование | свободного назначения |
Площадь, м2 | 111 |
Этаж | 1 из 14 |
Кирюшин Алексей Иванович, агент

5 799 000
Размещён 01.07.2025, обновлён 20.10.2025
Внимание!!!
При обращении в агентство для получения быстрого ответа по объекту обязательно говорите, что вы звоните по сайту МЛС СИТИ и называйте точный адрес объекта недвижимости.