Продажа. Земля коммерческая
Тольятти, Автозаводский, 40 лет Победы улица,49 Г - 150 000 000
Елена Лебедева
ООО Триэл-сервис
150 000 000
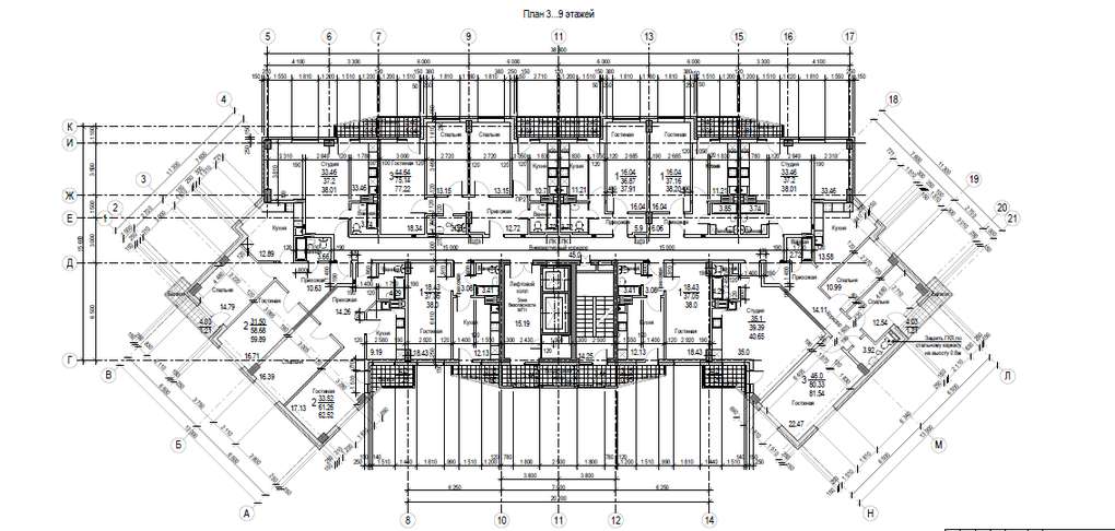
Земельные участки, общей площадью 5369 кв.м., огорожен забором, под многоэтажную застройку, есть рабочий проект - жилой многоквартирный дом 19 этажей, разрешение на строительство, продлено до 27.11.2027 г., выданные технические условия - водоснабжение, элетроснабжение, теплоснабжение. Общая площадь здания 12 805 кв.м , из них жилая площадь 8.610,15 кв.м., нежилая 876 кв.м. Количество квартир- 173 шт, 1-комн. - 110 шт., 2-х комн.- 32 шт., 3-х комн.- 31 шт. Все остальные подробности по телефону.
| Адрес | Тольятти, Автозаводский, 40 лет Победы улица,49 Г |
| Тип | Земля коммерческая |
| Использование | земли насел. пунктов |
| Участок, сот. | 54 |
Елена Лебедева, агент
ООО Триэл-сервис
Самарская область, г. Тольятти, ул.40 лет Победы, д.116, к.№1
150 000 000
Размещён 11.02.2026, обновлён 27.04.2026
ID: 4-2015-8321426





