Продажа 3-ком. квартиры 62.3м²
Самара, Кировский, Енисейская улица,43 - 7 999 000
Шабалкин Кирилл
"САМАРИТ" риэлторское агентство
7 999 000
128395 за м2
Продается полностью отремонтированная квартира с отличной планировкой. После ремонта никто не жил. Ипотеку собственник закроет собственными средствами (ипотека Сбербанка)
Фотографии реальные.
По квартире:
Сделан качественный ремонт. Можно сразу заехать и наслаждаться жизнью
Выполнена подготовка для кондиционеров, предусмотрены выводы под стиральную машину, гигиенический душ в сан.узле и многое другое
Новая электропроводка по всей квартире
Полы - стяжка
Огромное удобство - мастер выключатель. Вы больше не забудете выключить свет в комнате
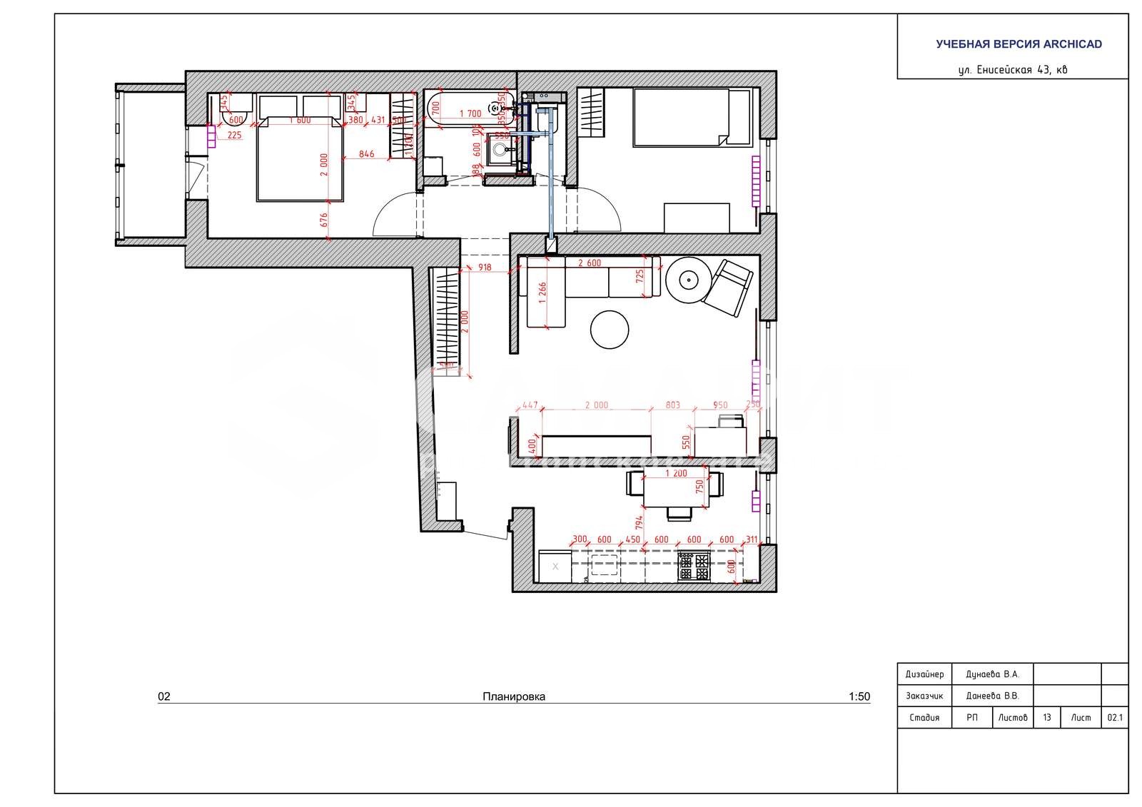
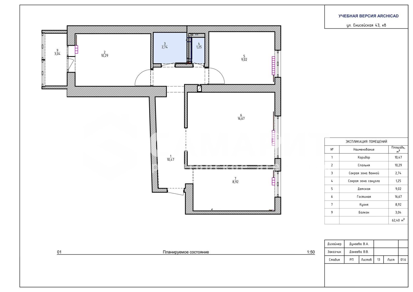
Удобная планировка. Комнаты раздельные. Сан.узел далеко от кухни.
Просторная прихожая с вместительным шкафом, в котором помещается очень много вещей.
Вся мебель и техника остаются в подарок новому собственнику.
Один взрослый собственник. Ипотека подходит.
Окна выходят на две стороны, поэтому в квартире всегда много света. Во дворе детский сад, в соседнем дворе школа. Рядом Гимназия №133. Через дорогу парк Металлургов, в котором очень приятно гулять по вечерам.
Звоните, мы покажем Вам квартиру в удобное время. Вам она понравится.
Общая площадь: 58,9 (без учета площади балкона) +3,4=62,3 кв.м Кухня: 9 кв.м Комната: 16,7+10,3+9 кв.м
| Адрес | Самара, Кировский, Енисейская улица,43 |
| Количество комнат | 3 |
| Площадь, м² | 62/9/36 |
| Этаж | 3/9 |
| Тип дома | Улучшенной пл. |
| Материал стен | Кирпичный |
Шабалкин Кирилл, агент
"САМАРИТ" риэлторское агентство
443124, г. Самара, ул. Солнечная, д. 10
7 999 000
Размещён 09.04.2026, обновлён 25.05.2026





















