Продажа 3-ком. квартиры 132.1м²
Самара, Ленинский, Молодогвардейская улица,168 - 25 000 000
Игорь
Агентство недвижимости "ЛУЧШИЙ ВЫБОР"
25 000 000
189251 за м2
Продаётся просторная 3‑комнатная квартира в Евроквартале (Ленинский район)
Адрес:Молодогвардейская,д. 168 / Вилоновская
Ключевые параметры:
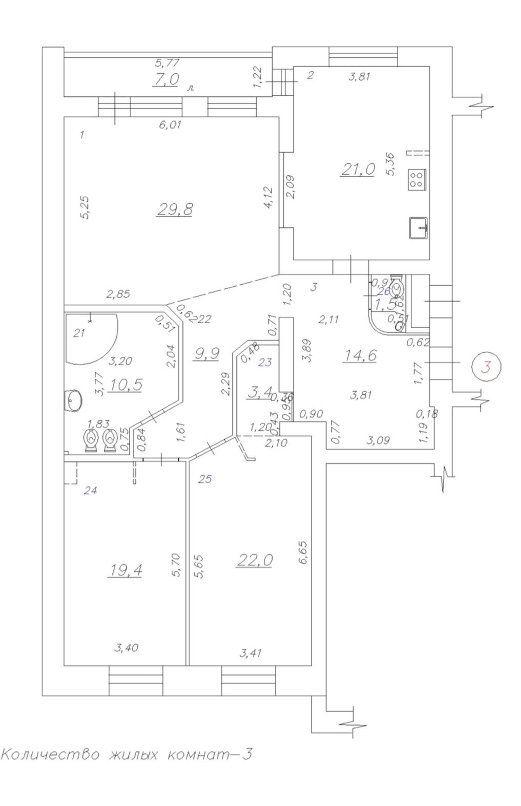
•Общая площадь: 132,1 кв.м.
•Этаж: 3 / 10 (кирпичный дом 2004 года постройки). •Количество комнат: 3 .
•Санузлы: 2.
Удобная и продуманная планировка:
•Кухня‑столовая — 21кв.м
•Зал — 29,8 кв.м
•Комнаты — 19,4 и 22 кв.м
•Две вместительные гардеробные.
•Выходы на лоджию из кухни и зала.
•Теплый пол .
Что остаётся в квартире:
•Встроенный кухонный гарнитур.
•Встроенная техника: варочная панель, духовой шкаф, СВЧ‑печь, посудомоечная машина.
Безопасность и комфорт территории:
•Закрытый двор с доступом по пульту.
•Возможность парковки автомобиля во дворе. •Доступна покупка места в паркинге.
Развитая инфраструктура — всё под рукой:
•Детские сады — в шаговой доступности.
•Школа № 6 им. Ломоносова и гимназия № 11 — рядом с домом.
•Университет Наяновой — в пешей доступности. •Площадь Куйбышева — через дорогу.
•Набережная — 5–6 минут пешком.
Почему стоит выбрать эту квартиру?
•Простор и функциональность:большая общая площадь и грамотная планировка.
•Безопасность:закрытый двор и контролируемый доступ.
•Комфорт
•Удобство локации:вся необходимая инфраструктура в пешей доступности.
•Юридическая чистота:1 собственник, отсутствие обременений, прямая продажа, полная стоимость в ДКП.
Это идеальный вариант для семьи, которая ценит комфорт, безопасность и удобное расположение! Звоните прямо сейчас — договоримся о просмотре в удобное для вас время!
| Адрес | Самара, Ленинский, Молодогвардейская улица,168 |
| Количество комнат | 3 |
| Площадь, м² | 132/71/21 |
| Этаж | 3/10 |
| Тип дома | Элитная |
| Материал стен | Кирпичный |
Игорь, агент
25 000 000
Размещён 21.11.2025, обновлён 21.11.2025



















