3-комнатная квартира: Самара, Советской Армии улица,240Б - 14 600 000

Ткачев Данила Сергеевич

АН ВАШ РИЭЛТОР

14 600 000
123207 за м2

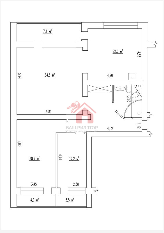
Продается просторная 3-комнатная квартира площадью 118.5 кв.м., без учета лоджий в живописном районе, всего в 15 минутах ходьбы от Волги.

В квартире две отдельные спальни площадью 20,7 и 12,2 кв.м с окнами во двор, на солнечную сторону и с видом на Волгу. Просторная гостиная 34,5 кв.м и кухня 22,6 кв.м с окнами на улицу Советской Армии создают уютную и светлую атмосферу.

Общая ванная комната совмещена с туалетом, большая прихожая. В каждой комнате установлены сплит-системы, 3 застекленные лоджии. Остается встроенная мебель: шкаф-купе, кухонный гарнитур со встроенной техникой, посудомоечная машина, стиральная машина, спальный гарнитур, мебель для подростка и диван.

Дом оборудован собственной котельной, горячая вода всегда в наличии. В доме действует ТСЖ, низкие коммунальные платежи. Парковка свободная — всегда есть место для автомобиля.

Дом расположен в экологически чистом районе: рядом санатории, пляж, Загородный парк. Развитая инфраструктура: магазины, школа, детский сад, фитнес-клуб МТЛ-Арена. Напротив дома — остановки маршрутов №89 и №35.

Это отличный вариант для тех, кто ценит комфорт, природу и развитую инфраструктуру.

АдресСамара, Октябрьский, Советской Армии улица,240Б
Количество комнат3
Площадь, м2118/67/22
Этаж9/10
Тип домаУлучшенной пл.
Материал стенКирпичный

Ткачев Данила Сергеевич, агент

danil2000t@mail.ru


логотип агентство недвижимости АН ВАШ РИЭЛТОР

АН ВАШ РИЭЛТОР

8(846)249-04-90

443115, г. Самара, Московское шоссе, д. 274, офис 3

vashrieltor63@bk.ru

вашриэлтор63.рф

14 600 000

Размещён 30.09.2025, обновлён 01.10.2025

Внимание!!!
При обращении в агентство для получения быстрого ответа по объекту обязательно говорите, что вы звоните по сайту МЛС СИТИ и называйте точный адрес объекта недвижимости.