Продажа 3-ком. квартиры 73.5м²
Самара, Промышленный, Калинина улица,107 - 5 200 000
Баландова Галина Борисовна
Общество ограниченной ответственностью «ЖилФонд»
5 200 000
70748 за м2
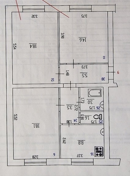
Продаётся трёхкомнатная квартира в Самаре Адрес: улица Калинина, дом 107, Промышленный район. Квартира расположена на первом этаже двухэтажного дома старого фонда, выполненного из кирпича. Основные характеристики: * Общая площадь квартиры — 73,5 кв. м. * Жилая площадь — 50 кв. м. * Площадь кухни — 8,8 кв. м. * Высота потолков — 2,85. * Планировка изолированная, что обеспечивает комфорт и личное пространство для каждого жильца. * Состояние квартиры хорошее. * Санузел раздельный. Коммуникации и удобства: * Отопление центральное. * В доме проведён газ. Инфраструктура и дополнительные удобства: * Во дворе есть открытая парковка. * Для детей предусмотрена детская площадка. * Для любителей активного образа жизни — спортивная площадка. Квартира оснащена стеклопакетами и железной дверью, что обеспечивает тепло- и шумоизоляцию, а также безопасность жильцов. Из окон открывается вид во двор. Эта квартира станет уютным и комфортным домом для вашей семьи. Приглашаем вас оценить все преимущества этого предложения лично. ПОД ОКНАМИ ОГОРОЖЕННЫЙ ПРИУСАДЕБНЫЙ УЧАСТОК
| Адрес | Самара, Промышленный, Калинина улица,107 |
| Количество комнат | 3 |
| Площадь, м² | 73/53/8 |
| Этаж | 1/2 |
| Тип дома | Старый фонд |
| Материал стен | Кирпичный |
Баландова Галина Борисовна, агент
Общество ограниченной ответственностью «ЖилФонд»
г Самара, Московское шоссе, д.3, офис 216
5 200 000
Размещён 14.02.2026, обновлён 14.02.2026





























