Продажа 2-ком. квартиры 50.8м²
Самара, Кировский, Крайняя улица,40 - 5 080 000
Агентство недвижимости Ивановой Дарии
5 080 000
100000 за м2
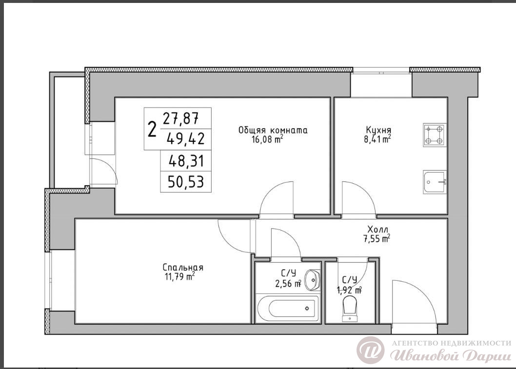
Продаётся двухкомнатная квартира в ЖК «Кислород», Кировский район, Самара Адрес: улица Крайняя, дом 40, дом 2, 5 этаж, 16-этажный кирпичный дом. Общая площадь квартиры составляет 50,8 кв. м., жилая — 28 кв. м (11.79 кв.м и 16.08 кв.м)., площадь кухни — 8,41 кв. м. Высота потолков — 2,7 метра. Квартира имеет улучшенную планировку с двумя изолированными комнатами, что позволяет удобно организовать пространство для жизни. В квартире оборудована стяжка полов, гидро изоляция в сан узлах, рабиаторы отопления, стояки ГВС и ХВС, ссетчики, металлическая входная дверь. В квартире есть лоджия , санузел раздельный. Установлены стеклопакеты. В комплексе предусмотрена спортивная площадка, где жители могут заниматься спортом и поддерживать здоровый образ жизни. В перспективе строительство школы на 350 мест, детского сада и поликлинники а также ТЦ на территории ЖК. Дом оборудован грузопассажирскими лифтами, что обеспечивает удобство и комфорт жильцов. Из окон квартиры открывается красивый вид на лес, который станет приятным дополнением к уютной атмосфере вашего дома. Не упустите возможность стать обладателем этой замечательной квартиры в одном из лучших жилых комплексов Самары!
| Адрес | Самара, Кировский, Крайняя улица,40 |
| Жилой комплекс | ЖК «Кислород» |
| Количество комнат | 2 |
| Площадь, м² | 50/28/8 |
| Этаж | 5/16 |
| Тип дома | Улучшенной пл. |
| Материал стен | Кирпичный |
Агентство недвижимости Ивановой Дарии
ул. Губанова, д.4, ул. Авроры, д.122, ул. Красноармейская, д.120

5 080 000
Размещён 15.10.2025, обновлён 17.10.2025












