Продажа 2-ком. квартиры 46.6м²
Самара, Кировский, Крайняя улица,40 - 5 100 000
Агентство недвижимости Ивановой Дарии
5 100 000
109442 за м2
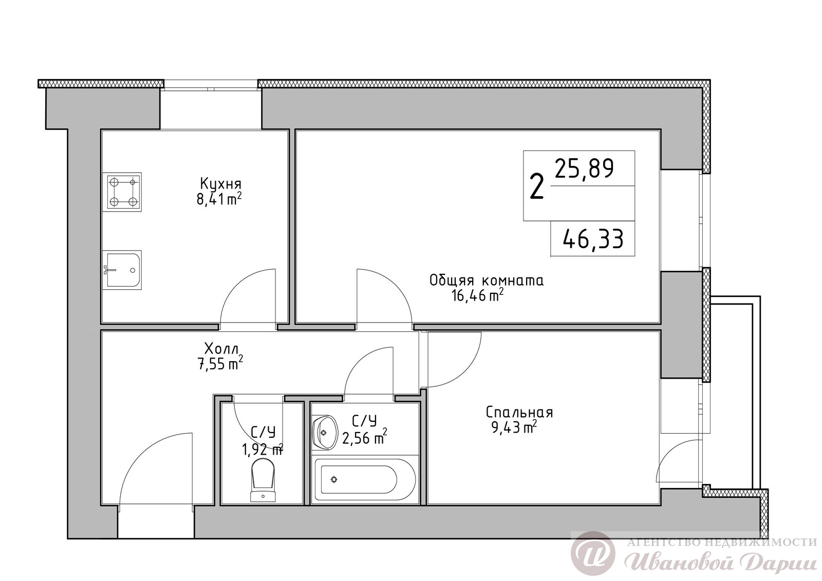
Продажа квартиры в новом ЖК «Кислород». Уютная двухкомнатная квартира в одном из самых перспективных районов Самары — строительство школы на 350 мест, двух детских садов и поликлиники обеспечит жителям все необходимое для комфортной жизни. В шаговой доступности расположены крупные торгово-развлекательные центры Letout, Метро, Максидом, Самарские термы и Самарский океанариум, предлагающие широкий выбор развлечений и услуг. Квартира расположена на втором этаже шестнадцатиэтажного кирпичного дома. Высота потолков составляет 2,7 метра, Общая площадь квартиры — 46,6 кв. м; жилая площадь — 25,89 кв. м (16,46 и 9,43); площадь кухни — 8,41 кв. м; В квартире выполнен хороший косметический ремонт, что позволит новым владельцам сразу же въехать и жить, не тратя время и средства на дополнительные работы. Стяжка, штукатурка, электро развода, обои межкомнатные двери, сантехника, натяжной потолок, фартук на кухне и и мокрые зоны в ванной плитка. Санузел раздельный, что является удобным решением для семьи. Своя автономная котельная обеспечивает надёжное и бесперебойное отопление; Большая открытая парковка во дворе позволяет удобно разместить автомобиль; В доме установлены грузо-пассажирский лифты; Для детей оборудована детская площадка, а для любителей активного образа жизни — спортивная площадка и зоны отдыха. Из окон квартиры открывается вид во двор, где жильцы могут наслаждаться спокойствием и умиротворением после рабочего дня. ЖК «Кислород» — это современный комплекс, который предлагает не только комфортное жильё, но и развитую инфраструктуру для жизни. Здесь созданы все условия для того, чтобы вы могли чувствовать себя в безопасности, уюте и гармонии. Не упустите возможность стать обладателем уютной квартиры в одном из лучших районов Самары!
| Адрес | Самара, Кировский, Крайняя улица,40 |
| Жилой комплекс | ЖК «Кислород» |
| Количество комнат | 2 |
| Площадь, м² | 46/25/8 |
| Этаж | 2/16 |
| Тип дома | Улучшенной пл. |
| Материал стен | Кирпичный |
Агентство недвижимости Ивановой Дарии
ул. Губанова, д.4, ул. Авроры, д.122, ул. Красноармейская, д.120

5 100 000
Размещён 07.10.2025, обновлён 17.11.2025


















