Продажа 3-ком. квартиры 65.6м²
Самара, Красноглинский, Крайняя улица,11 - 5 500 000
Аббасова Галина Александровна
Агентство недвижимости Византия
5 500 000
83841 за м2
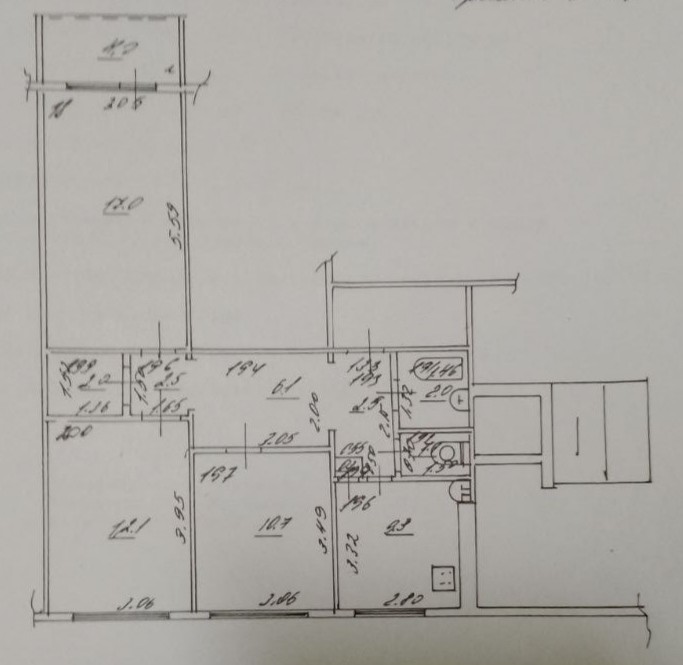
Светлая и теплая трехкомнатная квартира с частичным ремонтом и планировкой на две стороны. Кухня 9,3 кв.м и две спальни 10,7 кв.м и 12,1 кв.м выходят на улицу Крайнюю. Третья комната 17 кв.м с лоджией 4 кв.м с видом на Волгу и Жигулёвские горы. Встроенная гардеробная 2 кв.м. Окна пвх качественные, замена радиаторов, на полу линолеум, потолки оштукатуренные идеально ровные. Санузел раздельный, отделан плиткой. Карман на 2 квартиры, тихие соседи.
Общая площадь 65.6 кв.м без учёта лоджии, жилая 39.8 кв.м, кухня 9.3 кв.м.
Взрослые собственники, прямая продажа.
| Адрес | Самара, Красноглинский, Крайняя улица,11 |
| Количество комнат | 3 |
| Площадь, м² | 65/45/10 |
| Этаж | 7/9 |
| Тип дома | Улучшенной пл. |
| Материал стен | Панельный |
Аббасова Галина Александровна, агент
5 500 000
Размещён 09.09.2024, обновлён 03.03.2026
ID: 1-349-11314












