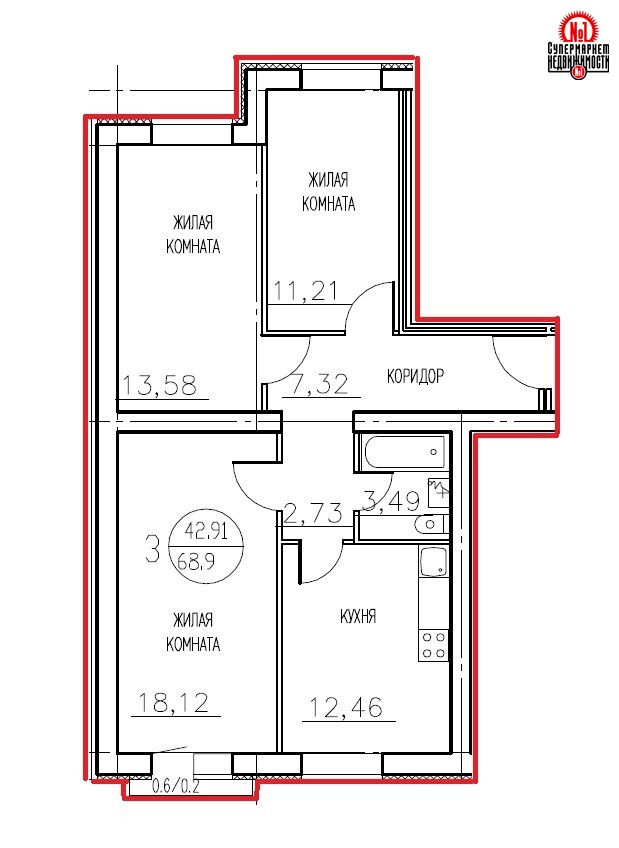
Продажа 3-ком. квартиры 68.9м²
Самара, Красноглинский, Виталия Жалнина улица,22 - 7 500 000
Богуманов Марсель Ильясович
ООО "Супермаркет недвижимости №1"
7 500 000
108853 за м2
Продаю отличную квартиру на две стороны и самую большую по площади в микрорайоне. Полноценный ремонт от собственника (делали для себя), качественная отделка стен. На кухне и коридоре на полу керамогранитная плитка, натяжные потолки во всей квартире. Установлен теплый пол в прихожей и на кухне. Санузел выложен плиткой до потолка, сан.техника надежная. Остается: вытяжка, духовой шкаф, варочная панель, посудомоечная машина. Кондиционер, мебель в ванной комнате и в коридоре. Есть французский балкончик с видом на всегда свободную парковку. Хорошая входная дверь. Отличное местоположение дома, рядом остановка, магазины, школа, дет.сад . Без обременений. Рассмотрю все предложения. Звоните.
| Адрес | Самара, Красноглинский, Виталия Жалнина улица,22 |
| Количество комнат | 3 |
| Площадь, м² | 68/42/12 |
| Этаж | 3/3 |
| Тип дома | Улучшенной пл. |
| Материал стен | Кирпичный |
Богуманов Марсель Ильясович, агент
7 500 000
Размещён 08.04.2026, обновлён 08.04.2026
ID: 1-334-7378



























