Продажа 1-ком. квартиры 42.2м²
Самарская область, Волжский р-н, Смышляевка посёлок городского типа ,10 - 4 700 000
Богуманов Марсель Ильясович
ООО "Супермаркет недвижимости №1"
4 700 000
111374 за м2
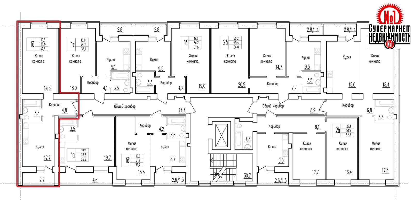
Продам чистую и уютную однокомнатную квартиру (распашонку) в новом кирпичном доме на 8-ом этаже по улице Постникова, дом 10. Площадь квартиры с учетом лоджии 42.2 - кв.м.(см. планировку). Санузел совмещен, лоджия застеклена панорамными окнами, счетчики на воду. В квартире остаётся встроенный кухонный гарнитур, варочная поверхность, кондиционер, возможно и другую мебель по договоренности. Рядом детский садик, школа, великолепный фонтан. Звоните. Несколько собственников. Нотариальная сделка.
| Адрес | Самарская область, Волжский р-н, Смышляевка посёлок городского типа ,10 |
| Количество комнат | 1 |
| Площадь, м² | 42/19/12 |
| Этаж | 8/9 |
| Тип дома | Улучшенной пл. |
| Материал стен | Кирпичный |
Богуманов Марсель Ильясович, агент
4 700 000
Размещён 10.12.2025, обновлён 15.12.2025
ID: 1-334-7345


























