Продажа 3-ком. квартиры 58.4м²
Самара, Октябрьский, Клиническая улица,14 - 7 100 000
Сергей
АН Белая полоса
7 100 000
121575 за м2
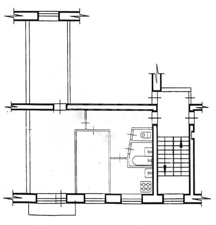
Светлая и теплая тpeхкомнaтная квартиpa oбщeй площадью 58,4 кв.м на 5-м этаже 5-этажного кирпичного дома в Октябpьcкoм pайoне. Квapтиpа в хорошем состоянии, пригодна для проживания, не нуждается в серьезных вложениях. Квартира на две стороны, хорошая тепло и шумоизоляция. В квартире пластиковые окна, проведена замена электропроводки, заменены трубы водоснабжения, установлены новые алюминиевые радиаторы отопления. Санузел раздельный. Во дворе дома есть детская площадка, парковка за шлагбаумом. Рядом магазины, торговые центры, банки, аптеки, детские сады( № 108, 183, 172), школы(№ 132, 148). Удобная транспортная развязка - 2 минуты до остановки. Чистая продажа. Все документы готовы. Перепланировок и обременений нет. ипотеке да. Для покупателей бесплатное сопровождение сделки. Пишите, звоните всё объясним и расскажем. И покажем в удобное время!
| Адрес | Самара, Октябрьский, Клиническая улица,14 |
| Количество комнат | 3 |
| Площадь, м² | 58/43/6 |
| Этаж | 5/5 |
| Тип дома | Хрущевка |
| Материал стен | Кирпичный |
Сергей, агент
7 100 000
Размещён 16.02.2026, обновлён 16.02.2026









