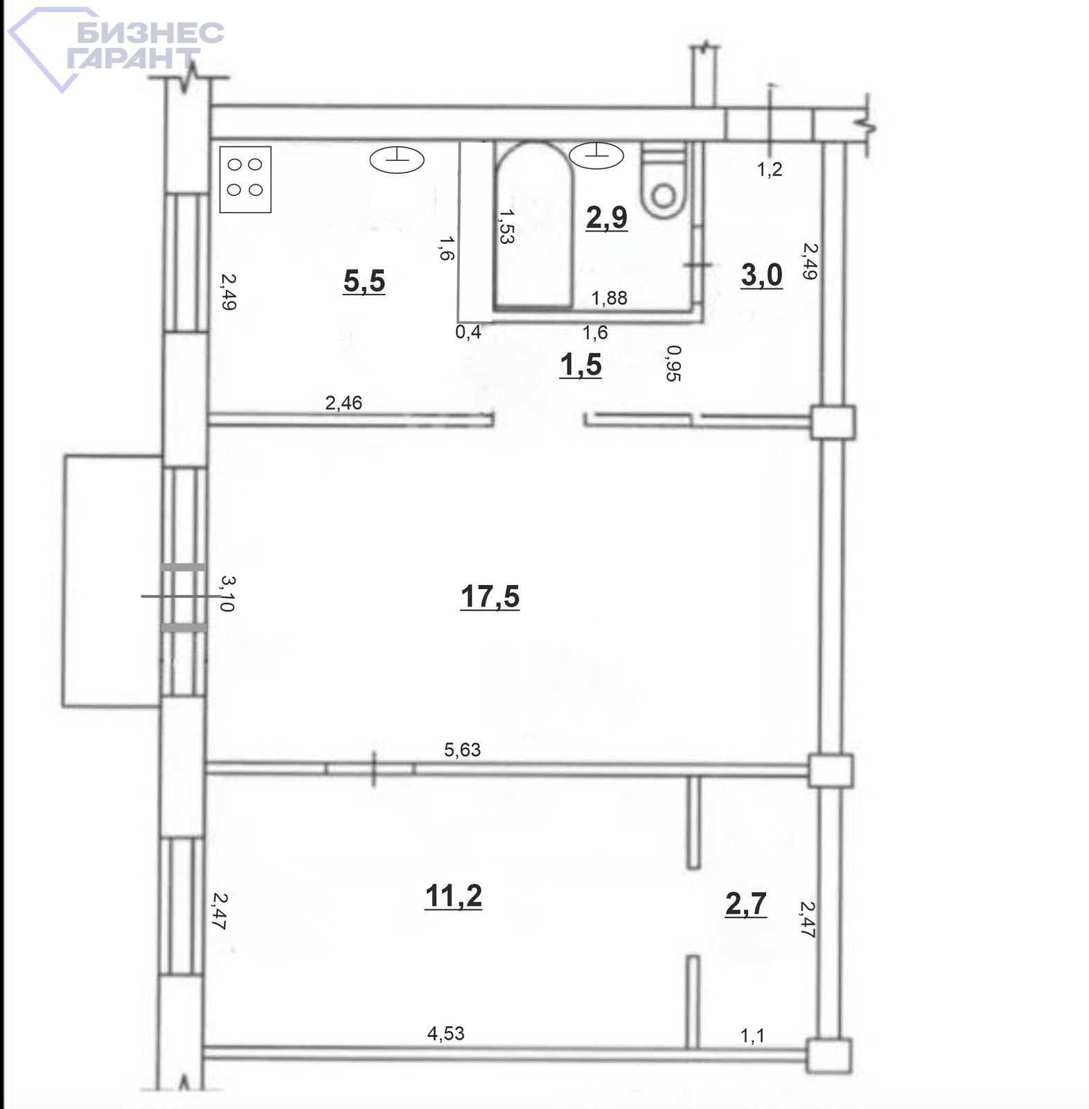
Продажа 2-ком. квартиры 44.3м²
Самара, Железнодорожный, Партизанская улица,122 - 4 700 000
Наталья
Инвестиционная компания Бизнес Гарант
4 700 000
106095 за м2
Предлагается к продаже уютная 2-комнатная квартира на 2-м этаже!
Все, что нужно для жизни, рядом с домом:
- дом расположен рядом со сквером Санфировой, во дворе находятся детские сады, школы.
- в шаговой доступности: поликлиники, сеть продуктовых магазинов - Пятерочка, Магнит, а также развлекательные, образовательные и культурные организации, медцентры.
- в 10 минутах ходьбы – ТРК «Аврора Молл».
Логистика и характеристики:
- отличная транспортная развязка (в доступности почти все виды транспорта: трамвай, автобусы, газели) позволят вам максимально сократить потери времени, связанные с работой, учебой и бытом.
- тихий спокойный двор, много зелени.
- в сквере живоносный источник, большая детская площадка, уличные тренажеры.
Квартира идеально подойдет для молодой семьи, студентов или для покупки в качестве инвестиции под сдачу в аренду.
Один взрослый собственник, полная стоимость в договоре, никто не прописан и не проживает, без долгов и обременений.
Документы к сделке готовы! Быстрый выход на сделку. Ключи передадим в день полного расчета.
------------------------------------------------------------
Центр недвижимости «Бизнес Гарант» -
все виды услуг и сделок с коммерческой и жилой недвижимостью на выгодных для Вас условиях!
| Адрес | Самара, Железнодорожный, Партизанская улица,122 |
| Количество комнат | 2 |
| Площадь, м² | 44/31/5 |
| Этаж | 2/5 |
| Тип дома | Хрущевка |
| Материал стен | Панельный |
Наталья, агент
Инвестиционная компания Бизнес Гарант
Самара, ул.Мичурина, 21А
4 700 000
Размещён 03.12.2025, обновлён 04.12.2025














