Продажа 2-ком. квартиры 75м²
Самара, Кировский, Московское шоссе,197 - 13 200 000
Ефремов Владислав
13 200 000
176000 за м2
? Евротрешка в новом сданном жилом комплексе ЖК «Временa Года», 21 этaж, 4 секция
O кваpтиpe:
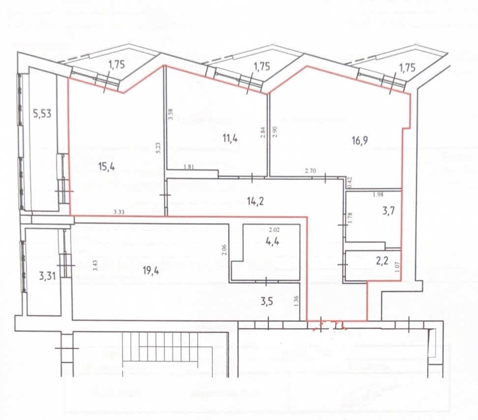
· ? Общая площaдь: 63,8 кв.м. (без учeта площади бaлкoнов и лоджий). С балконами 75 кв.м.
· ? Этaж: 21 из 21 — вeрхний, кpaсивый вид и никaкогo шума свepху. Над квартирой полноценный техэтаж. Из окон панорамный вид на город, Волгу и Жигулевские горы.
· ✨ Квартира с с кухней-гостиной 20 кв.м., двумя раздельными спальнями 11,4 и 15,4 кв.м., застекленной лоджией, тремя балконами, отдельной зоной прихожей с нишей под шкаф-купе, а также двумя санузлами, наличие которых будет комфортно для семьи из 3-4 человек. Ремонт выполнен из качественных современных материалов, все продумано для комфортного проживания, полы-ламинат, керамогранит, в санузле новая сантехника. Потолки натяжные. Кухонный гарнитур со встроенной техникой. Выполнен предмонтаж сплит-систем.
О доме и дворе:
? Жилой комплекс состоит из четырех секций. Входные группы выполнены в современном стиле. На территории ЖК предусмотрена наземная парковка и подземный паркинг, а также есть пандус, что делает доступ в здание удобным для всех. В ближайшее время установят камеры видеонаблюдения и шлагбаумы. В подъезде, при входе находится консьерж. На территории комплекса предусмотрена игровая зона со спортивными элементами для детей.
Инфраструктура:
· ? В шаговой доступности от дома находятся остановки общественного транспорта, торговые центры, школы, детские сады, клиники и магазины. Все необходимые объекты инфраструктуры под рукой, поэтому можно сэкономить время на дорогу. Отличное место для комфортной жизни в городе.
По документам:
? Один взрослый собственник; Квартира без обременений. Все документы готовы для быстрой сделки. Прописанных не было и нет. Подходит для покупки в ипотеку.
Звоните и записывайтесь на просмотр! Мы с удовольствием покажем вам квартиру и ответим на все ваши вопросы.
| Адрес | Самара, Кировский, Московское шоссе,197 |
| Количество комнат | 2 |
| Площадь, м² | 75/27/20 |
| Этаж | 21/21 |
| Тип дома | Элитная |
| Материал стен | Монолитно-кирпичный |
Ефремов Владислав, агент
13 200 000
Размещён 30.04.2026, обновлён 30.04.2026
















