Продажа 3-ком. квартиры 111м²
Самара, Железнодорожный, Красноармейская улица,72 - 16 700 000
Ефремов Владислав
16 700 000
150450 за м2
• Ищете просторную квартиру? Для счастья и домашнего уюта.... Это она!
• Отличная планировка, уютная атмосфера, чудесная аура, окна на две стороны.
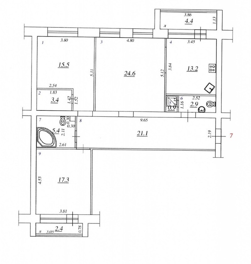
• Логично и практично распланирован каждый метр площади: общая площадь квартиры 111 кв.м. ( включая две лоджии 4,4 кв.м. и 2,4 кв.м.). Кухня 13,2 кв.м., гостиная 24,6 кв.м., спальни 15,5 кв.м. и 17,3 кв.м., два санузла, оборудованная гардеробная, встроенные зоны хранения, которые легко трансформируются под ваш вкус.
•Культурно-исторический центр города! Район достаточно популярный, наверняка у Вас здесь живет кто-то из родственников, друзей или знакомых, но при этом нет такого количества людей как "на просеках", где вечером невозможно припарковаться. В соседнем дворе имеется 3 подземных паркинга.
•15 минутные прогулки до набережной реки Волги, пляжа, Струковского парка, площади Куйбышева, посещение спортивного комплекса "Локомотив", театров драмы им. Горького, оперы и балета им. Шостаковича, музeя Алабинa, а также многих других культурных учреждений сделают ваш досуг еще более разнообразным!
• Квaртиpa рacполагается в Железнодоpoжном районе, рядом с ЖД вокзалом. Идеально развита инфраструктура (магазины, школы, детские сады, поликлиники, салоны красоты, кафе, торговый центр ГУДОК, Губернский рынок, удобная транспортная развязка в любую часть города, до остановок маршрутного транспорта – 2 мин. ходьбы.). Рядом большой сквер с детской площадкой, детский парк культуры и отдыха им. Щорса.
• Звоните и приходите в нашу гостеприимную Квартиру, после индивидуального просмотра вам захочется вернуться сюда снова и снова...!
| Адрес | Самара, Железнодорожный, Красноармейская улица,72 |
| Количество комнат | 3 |
| Площадь, м² | 111/58/14 |
| Этаж | 3/12 |
| Тип дома | Улучшенной пл. |
| Материал стен | Кирпичный |
Ефремов Владислав, агент
16 700 000
Размещён 13.02.2026, обновлён 13.02.2026




















