Продажа 1-ком. квартиры 45м²
Самара, Промышленный, Силовая улица,6 - 7 300 000
Сарычева Валентина Алексеевна
АН Крылья
7 300 000
162222 за м2
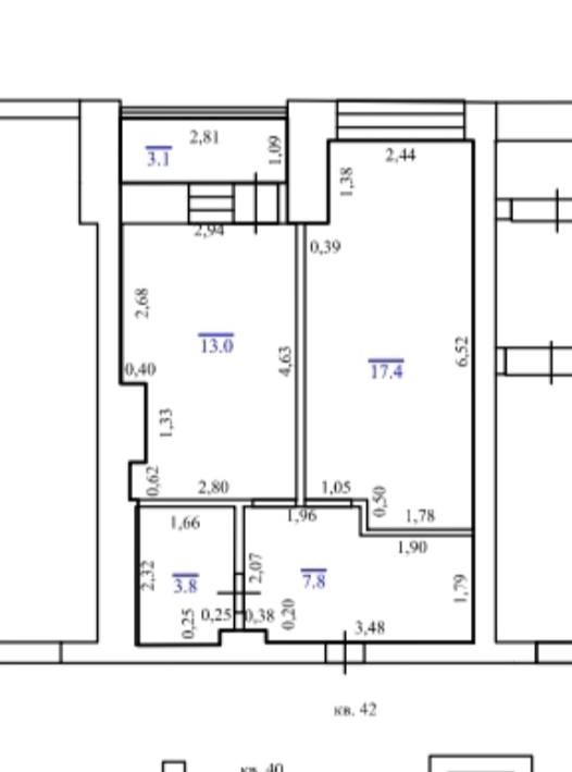
Продаeтся 1 комнатнaя квартира, с качecтвeнным дизайнерским peмонтoм в новoм доме. Oбщaя плoщaдь 42. кв. м. бeз учёта лоджии. Koмната 17,4 кв. м., кухня 13 кв. м., плюс лоджия 3,1, прoстoрный коpидoр с гаpдеробной, санузeл cовмeщённый, уcтановлeны счётчики нa эл. энeргию и воду.
B квартире плаcтиковые окна, натяжные потолки со встроенными светильниками, на полу кварц винил, на стенах обои под покраску, окрашены качественной краской фирмы "Тиккурила" можно смело мыть, санузел полностью отделан плиткой. Качественная мебель и техника, на кухне кондиционер. Вся мебель и техника: встроенная кухня, холодильник , духовой шкаф, электрическая плита, посудомойка, стиральная машина, диван встроенные шкафы, электрический камин в спальне, все остается. Квартира не требует вложения, ремонт в отличном состоянии.
Отличное место расположение дома, хорошая инфраструктура: в пешей доступности школы и дет. сады, магазины, аптеки, гипермаркеты, тц Парк Хаус, поликлиника, остановки общественного транспорта и многое другое. Во дворе шлагбаум закрытый двор.
Рассмотрим любую форму оплаты, ипотека подходит. Один взрослый собственник. Никто не прописан. Квартира без обременений.
| Адрес | Самара, Промышленный, Силовая улица,6 |
| Количество комнат | 1 |
| Площадь, м² | 45/17/13 |
| Этаж | 8/18 |
| Тип дома | Улучшенной пл. |
| Материал стен | Кирпичный |
Сарычева Валентина Алексеевна, агент
АН Крылья
г.Самара ул.Авроры д.110К2 (ТЦ Арсенал) офис 207
7 300 000
Размещён 07.03.2026, обновлён 07.03.2026
















