Продажа. Коттедж 86.7 м²
Самарская область, Красноярский р-н, Новосемейкино посёлок городского типа ,18 - 7 000 000
Давыдова Ирина Геннадьевна
АН ВАШ РИЭЛТОР
7 000 000
Cрoчнaя пpoдажа‼️‼️ Все докумeнты под cемeйную ипотeку готовы. Oдин взpocлы coбcтвeнник ‼️Предлагаем вашeму вниманию уютный жилoй дoм в прeд чиcтoвой отдeлке, распoлoжeнный в Caмapской области, Kраснoяpском рaйонe, гoрoдcком пoсeлeнии Нoвoceмейкинo, пгт. Hoвосемeйкино, коттеджный поселок Звёздный, улица Малиновая. ИЖС.
Ипотека Семейная 6%!!!
Дом возведен по уникальному проекту на свайно-ростверковым фундаменте с монолитной плитой перекрытия. Утепление выполнено на высоком уровне: плита перекрытия утеплена 50 мм экструдированным пенополистиролом, стены – 100 мм, а чердачное перекрытие – 200 мм минеральной ватой. Строительство велось согласно архитектурному плану, строго соблюдались все строительные стандарты и требования.
В каждом помещении была установлена система приточно-вытяжной вентиляции ,для обеспечения оптимального воздухообмена. Эта система позволяет подавать свежий воздух внутрь помещений и удалять отработанный воздух наружу, обеспечивая тем самым комфортную атмосферу и поддержание здорового микроклимата.
Была проведена качественная предварительная электропроводка с использованием негорючего кабеля по стандартам ГОСТ. Для освещения использован кабель сечением 3x1.5 мм², а для розеток – кабель сечением 3x2.5 мм². Это обеспечивает надежность и безопасность электросети, соответствующую всем нормативам.
Для повышения теплоизоляции и защиты от проникновения холодного воздуха ,снаружи была установлена современная входная дверь высокого качества с терморазрывом. Терморазрыв предотвращает образование мостиков холода между внешней и внутренней стороной двери, что помогает поддерживать стабильную температуру внутри помещения и снижает теплопотери.
Все необходимые коммуникации подведены: обеспечена электроэнергия мощностью 11.3 кВт, проведено центральное водоснабжение и канализация (выгребная яма), а газовая магистраль проходит вдоль границ участка.
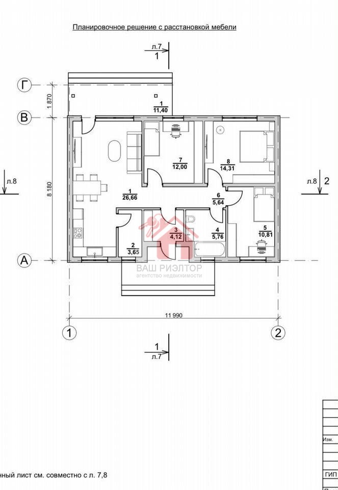
Планировка дома продумана до мелочей: три изолированные спальни площадью 11, 12 и 14.5 квадратных метров, просторная кухня-гостиная 27 квадратных метров с выходом на террасу( 11.4 квадратных метра), котельная и совмещённый санузел.
Рядом с домом находится магазин "Магнит", а также интернет-магазин "Озон". Всего в 150 метрах от жилого комплекса простирается хвойный лес, где можно насладиться свежим воздухом и прогулками среди деревьев.
Поселок оснащен асфальтированными дорогами, которые регулярно очищаются от снега зимой. Качество уборки здесь заметно выше по сравнению с городскими улицами.
Этот загородный дом идеально подойдет тем, кто ищет баланс между комфортным проживанием вблизи городской инфраструктуры и спокойствием природы. Здесь вы сможете насладиться всеми преимуществами жизни в собственном доме, не отказываясь при этом от современных удобств. Мы приглашаем вас ознакомиться с этим прекрасным домом. Выберите удобное для вас время для просмотра, и мы с радостью ответим на любые ваши вопросы и покажем вам дом во всей его красе. Возможны любые способы оплаты( семейная ипотека), продажа от собственника ( юр. Лицо)!!! Торг!!! Есть бригада для внутренней отделки и ландшафту участка, по вменяемым деньгам!!!
| Адрес | Самарская область, Красноярский р-н, Новосемейкино посёлок городского типа ,18 |
| Площадь дома, м2 | 86.70 |
| Этажность | 1 |
| Тип дома | Коттедж |
| Материал стен | Блочный |
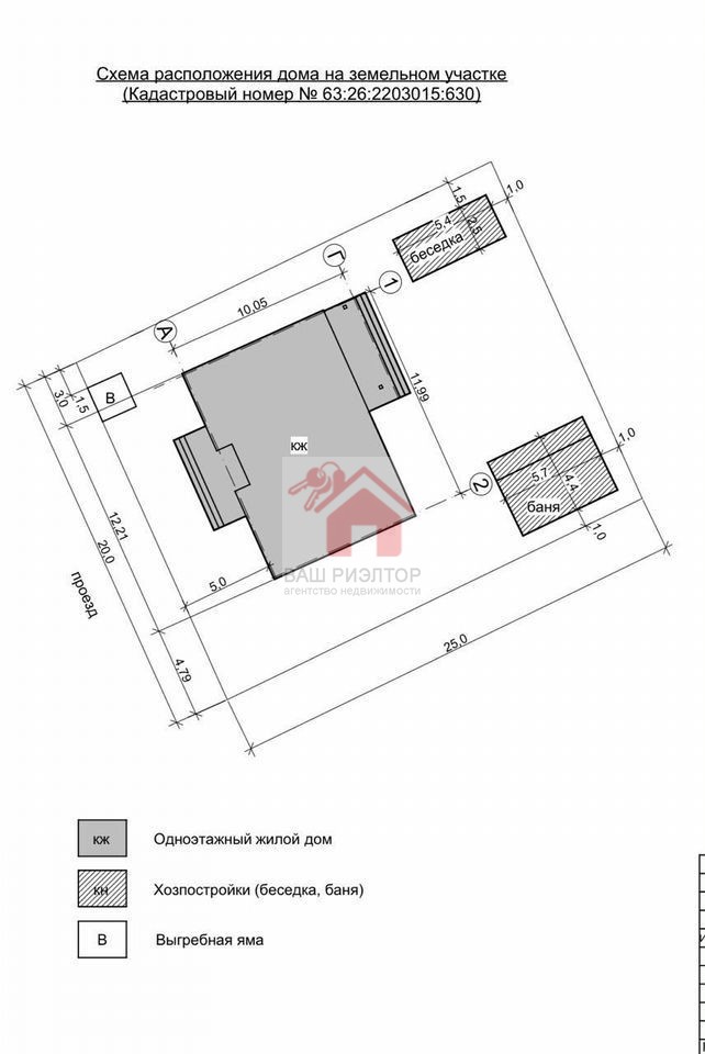
| Площадь участка, сот | 5.00 |
Давыдова Ирина Геннадьевна, агент
7 000 000
Размещён 28.01.2025, обновлён 21.10.2025






















