Продажа. Коттедж 167 м²
Самарская область, Красноярский р-н, Новосемейкино посёлок городского типа ,46 А - 12 000 000
Бутяева Мария Сергеевна
ООО "Супермаркет недвижимости №1"
12 000 000
Предлагаю к продаже новый коттедж в живописном месте) Год постройки - 2025
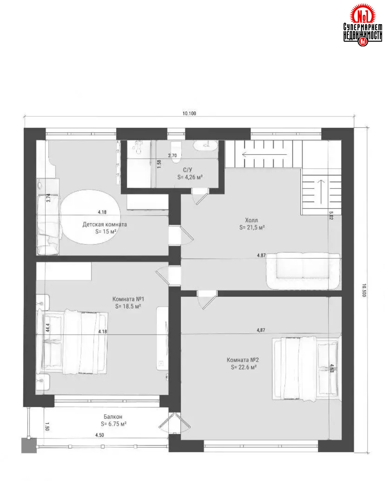
Участок ровный. Все коммуникации подведены. Дом просторный и светлый 2 этажа. Панорамное остекление, есть балкон.
Дом построен из качественных и современных материалов.
5 жилых комнат, 2 с/у. Бетонная лестница! Один собственник.
полная сумма в договоре. До города на машине 15 минут.
Школьный автобус отвезёт ваших детей в школу) Ждём на просмотры)
| Адрес | Самарская область, Красноярский р-н, Новосемейкино посёлок городского типа ,46 А |
| Площадь дома, м2 | 167.00 |
| Тип дома | Коттедж |
| Материал стен | Газобетонный блок |
Бутяева Мария Сергеевна, агент
12 000 000
Размещён 19.03.2026, обновлён 19.03.2026
ID: 2-334-708





























