Продажа. Коттедж 292 м²
Самарская область, Волжский р-н, Власть Труда посёлок,4ка - 13 600 000
Драгилева Елена Владимировна
Общество с ограниченной ответственностью «Огни Самары»
13 600 000
Назовите номер ID 1646 при обращении к специалистам. Для быстрого ответа на ваш вопрос!
Готовый дом для ПМЖ или отдыха на выходных. Никакого эконома. Только бизнес-класс и запас прочности.
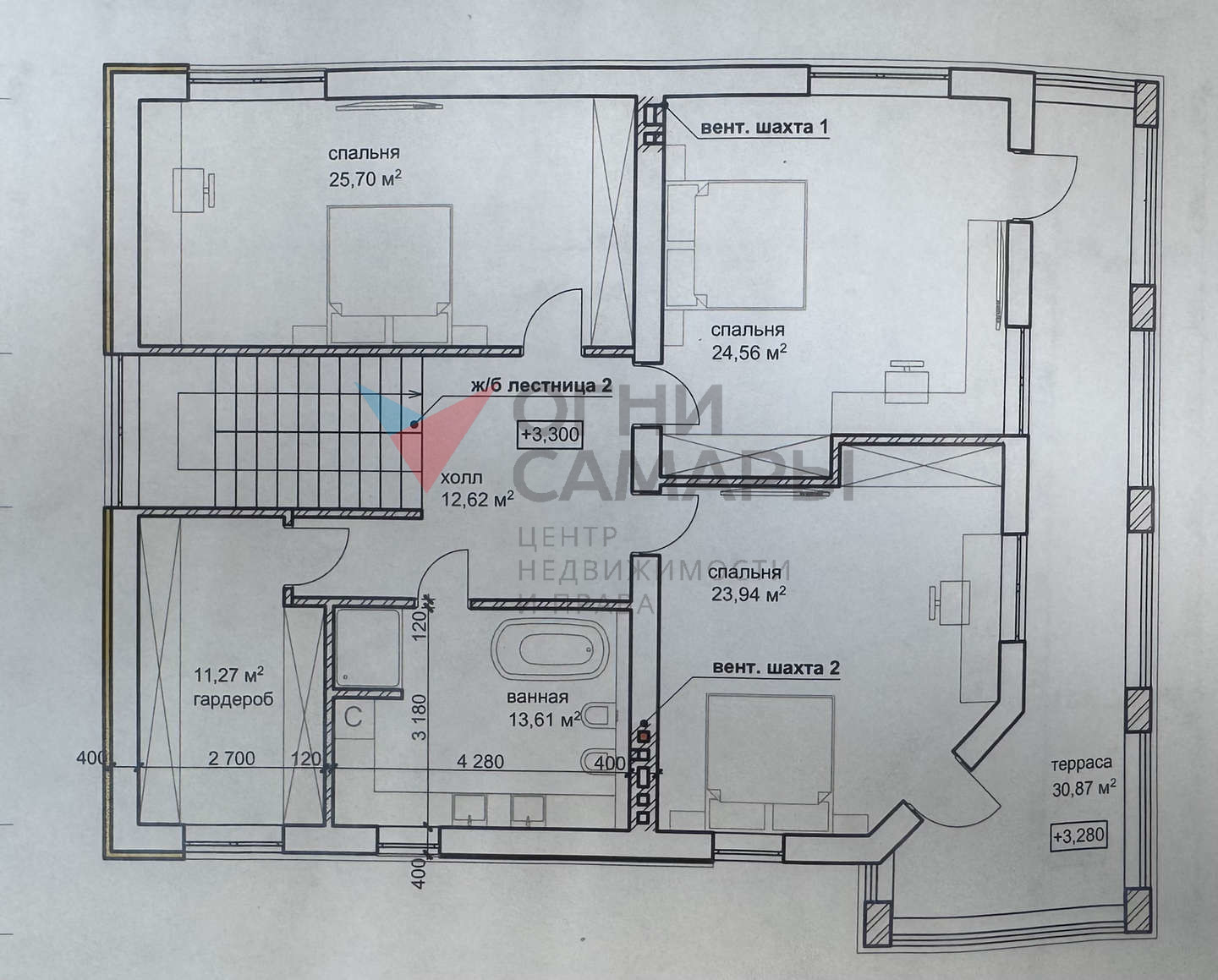
Основные характеристики:
· Общая площадь дома: 230 м²
· Террасы: 2 шт. по 31 м² (62 м² полезного уличного пространства)
· Кухня-гостиная: 35,77 м² (просторное светлое место для всей семьи)
· Спальни: 3 отдельные комнаты + кабинет по проекту, но у вас есть возможность сделать планировку по своему усмотрению
ЕСТЬ ВОЗМОЖНОСТЬ ДОКУПИТЬ 10 соток земли на прилегающем участке.
? КОНСТРУКЦИЯ И КАЧЕСТВО (100% надежность):
✅ Фундамент: Свайно-ростверковый. Диаметр свай — 30 см
✅ Стены: Пенобетон «ГРАС» D500
✅ Окна: 70 мм стеклопакеты бизнес-класса
УЧАСТОК И ТЕРРИТОРИЯ:
Территория облагорожена:
· Гостевой дом / баня — 32 м²
· Плодовые деревья (урожай уже есть)
· Ухоженный ландшафт, всё продумано
ЛОКАЦИЯ И ИНФРАСТРУКТУРА:
Это Мастрюковские озера. Удивительное сочетание дикой природы и городского комфорта.
В шаговой доступности:
· Оборудованный пляж о. Барское
· Конный клуб «Гелио-парк» (Моя Ильинка)
· Земляничные поля, леса (грибы/ягоды)
· Тропы для вело- и квадропрогулок, снегоходов
*5-10 минут на автомобиле:*
· Социалка: Школа, садик, поликлиника, МФЦ, фитнес, банк
· Магазины: Сетевые супермаркеты, ПВЗ Ozon/Wildberries
· Отдых: Эко-отель «Маяк» (СПА, ресторан, вейк-парк)
| Адрес | Самарская область, Волжский р-н, Власть Труда посёлок,4ка |
| Площадь дома, м2 | 292.00 |
| Этажность | 2 |
| Тип дома | Коттедж |
| Материал стен | Пеноблок |
| Площадь участка, сот | 10.00 |
Драгилева Елена Владимировна, агент
13 600 000
Размещён 20.04.2026, обновлён 24.04.2026
















