Продажа. Дом 98.6 м²
Самарская область, Ставропольский р-н, Ягодное село,99 - 7 000 000
Митрофанов Владимир Сергеевич
Русская жемчужина
7 000 000
Свободная продажа!
Отличная цена! Территория "Новое Ягодное" первая линия!
Закрытая территория, своя управляющая компания обеспечивает безопасность, чистоту и сохранность территории.
В шаговой доступности имеется вся необходимая инфраструктура, остановка общ. транспорта, магазины, ПВЗ.
Также отличный план по развитию территории, парки, площадки, строительство Школы.
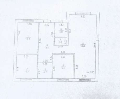
Дом 98,6 кв. м. предчистовая отделка, что позволит новому владельцу воплотить свои дизайнерские идеи и создать уютное и комфортное жильё по своему вкусу, подведены все коммуникации (кроме газа, подключение возможно).
Планировка дома имеет три спальни от 10 кв.м., большую кухню-гостиную на 34 кв.м., совмещенный санузел, просторный коридор, техническое помещение.
Документы полностью готовы, подходит только под рыночную ипотеку, материнский капитал или различные сертификаты.
Обращайтесь и записывайтесь на просмотр!
| Адрес | Самарская область, Ставропольский р-н, Ягодное село,99 |
| Площадь дома, м2 | 98.60 |
| Этажность | 1 |
| Тип дома | Дом |
| Материал стен | Пеноблок |
| Площадь участка, сот | 7.70 |
Митрофанов Владимир Сергеевич, агент
7 000 000
Размещён 02.04.2026, обновлён 02.04.2026














