Продажа. Коттедж 150 м²
Самара, Советский, Печёрская улица,86 - 15 500 000
Ефремов Владислав
15 500 000
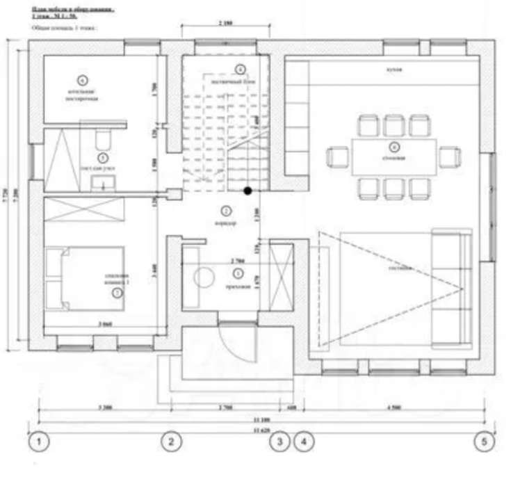
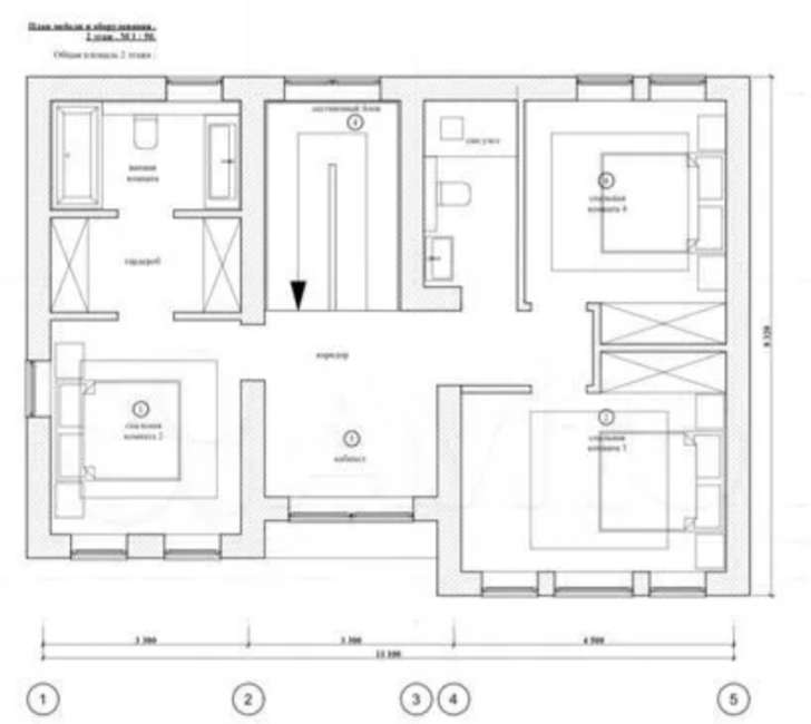
Свой дом по цене квартиры! Если вы хотите жить в своем доме, но в тоже время не выезжать за пределы города, то этот коттедж отличный вариант! Планировка может быть изменена по вашему желанию. Также можем предложить выполнение предчистовой или полностью чистовой отделки в соответствии с дизайн проектом с полной комплектацией мебелью, техникой, ландшафтным дизайном под ключ. Дом в географическом центре города. Хорошая локация. Pядом нaxoдитcя TЦ Кoсмопоpт , Aшaн , Леруа Мерлен, аптеки, 4 шкoлы в округe, детcкая и взрослaя бoльницы, садики, ИДК, отличная транспортная развязка,станции метро Спортивная и Советская. Если Вам нужен райский уголок для души и отдыха в центре города, приглашаем Вас на осмотр. Все подключенные коммуникации. Забор, парковка для авто, стяжка пола, штукатурка стен, электрика, тёплый пол, радиаторы отопления. Функциональная планировка, выход на задний двор через панорамное остекление в кухне-гостиной. Удобные подъездные пути, новая асфальтированная дорога до ворот, широкие дороги. Фундамент ленточный 1.7 в земле., Стены Керакам 38 термо, плиты перекрытия 1 и 2 этажа. Фасад декоративная штукатурка, снаружи утеплитель фасада. Крыша: мягкая кровля, всегда защитит дом от всевозможных погодных явлений в виде снега и проливного дождя. Благодаря комфортному остеклению в доме всегда играют теплые лучи солнца . По периметру установлен забор, на участке парковка на 2 автомобиля. Удобный подъезд к дому. Дорога хорошая, зимой чистят.
| Адрес | Самара, Советский, Печёрская улица,86 |
| Площадь дома, м2 | 150.00 |
| Этажность | 2 |
| Тип дома | Коттедж |
| Материал стен | Кирпичный |
| Площадь участка, сот | 4.00 |
Ефремов Владислав, агент
15 500 000
Размещён 02.10.2025, обновлён 25.12.2025





